









The following pages present the design experiences conducted in Sub-Saharan Africa by architect André Ravéreau (Limoges 1919 – Aubenas 2017). His projects, achieved and unachieved, are always strongly integrated into the context and represent one of the many declinations of the Modern Movement south of the Sahara.
A French architect, little known in Italy, Ravérau studied at the École des beaux-arts first in Rouen and then in Paris, where he became a pupil of Auguste Perret, from whom he learnt to admire above all constructive details (see Ravéreau 2007, pp.15-16). Although closer to Perret’s teachings, Ravéreau became so fond of Le Corbusier’s work that he decided to follow in his footsteps, travelling to Algeria in 1949 to study the Saharan architecture of the M’Zab valley, first made known to the West thanks to Le Corbusier’s carnets de voyage (1931-33)[1].
André Ravéreau, a travelling architect «in search of opportunities to assert himself autonomously in his profession» (De Maio 2020, p. 6), moved to Algiers in the 1960s after various wanderings around the Mediterranean. Then, the Algerian capital was in full cultural ferment –a prelude to the independence season– and was at the same time the crossroads of architects and urban planners of the Modern Movement from the Old Continent[2]. Among these was Ravéreau, who worked between Algiers and M’Zab for about twenty years, holding important roles including that of Architecte en chef des monuments historiques d’Algérie (Architect in charge of the superintendence for the architectural and historical heritage of Algeria) from 1965 to 1973. On his initiative, the M’Zab valley was included in the UNESCO World Heritage list in 1982.
In the cohort of European architects working in Africa after World War II, Ravéreau demonstrated a profound autonomy from modernist stylistic features, coming to elaborate a personal language closely linked to his own biographical experience. Starting in the 1970s, his work took him beyond the Algerian desert to Sub-Saharan Africa, where he received commissions for school and health buildings in Mali, Mauritania and Burkina Faso, countries freed from colonialism but still under French influence. He then took part in the competition for the design of the French Embassy in Uganda.
In his discovery of this “new Africa”, Ravéreau brought with him the experience he had learnt in the Algerian desert and from traditional Mozabite architecture, which he transferred to his sub-Saharan projects, arriving at new solutions that were always strongly contextualised to a specific place.
From the lesson of M’Zab to the Sahel, the Mopti Health Centre
The Mopti Health Centre, designed between 1970 and 1971 and built between 1974 and 1976, launched a new season of buildings designed by André Ravéreau: first of all, because of the confrontation with a geographical climatic context and urban structure different from those of the Saharan area, the main testing ground for his professional experiments. Philippe Lauwers, an architect who worked with Ravéreau for several years, described the experience in Mopti as follows (2003, p. 109): «another region, another climate, another challenge!»[3]. Moreover, on this occasion Ravéreau was able to test for the first time the banco construction technique that he had not been able to use in Algeria[4].
Commissioned by the Ministère de la Santé du Mali and the Ministère de l’Aménagement et du Développement du Mali, the project was part of a programme financed by FED, Fonds Européen de Développent[5]. Ravéreau was chosen by the FED commission precisely because due to his «many years of experience working in Algeria [...], particularly in the hot and arid M’Zab region, he was particularly well prepared to grasp the climatic, social and economic constraints of the Sahelian situation» (Khan eds. 1984, p. 37).
Furthermore, although the experience in M’Zab constituted a specific geographically contextualised case study, it allowed Ravéreau to understand the relationships between climate and architecture. Referring to his first study trip to M’Zab in 1949, he himself stated (Ravéreau 2003b, p. 18):
I only understood what the humidity brought to Normandy after seeing what the dry climate brought to M’Zab. Through the difference, the phenomenon of M’Zab became clearer to me. I then worked for my degree on Normandy where I had lived since the age of twelve.
From that moment on, the reflections on the relationship between architecture and climate, which he developed over the years also through his professional practice, would constantly push him in the search for solutions suited to a new climatic context.
The Mopti Health Centre is located along an important and busy road axis of the city, Avenue de l’Indépendance, more precisely on a 4600 square metre lot, located between the large Friday Mosque –which is exactly opposite the lot, across the Avenue– and the Bani River, a branch of the Niger.
Ravéreau therefore had to deal on the one hand with the dense urban fabric of Mopti, on the other hand with the direct river frontage, but above all with the imposing earthen mosque characterised by soaring minarets and pinnacles. Therefore, the new buildings of the Health Centre, respecting this important pre-existence, have a modest height of one storey or maximum two. Thus, to those arriving in Mopti from the river, the new building appears as a raw earth base on which the mosque stands.
The Health Centre is made up of a complex of buildings, which in turn consist of aggregated “cells” of different sizes. Ravéreau had already experimented with a similar compositional solution in some projects for the M’Zab, where he reinterpreted the Mozabite housing cell and readjusted its urban aggregation system to the scale of the building. For example, in the Hôtel des postes in Ghardaïa (1966-67), the matrix of the housing cell was repeated –although the ‘standard cell’ was never copied exactly– then dilated, in order to combine in the same architecture the spaces of a public building with the domestic and private spaces of the postmaster’s house.
The Mopti sanitary complex, set slightly back from the Avenue de l’Indépendance, is separated from it by a bench wall with two access gates – one to the north-west of the plot, the other further inland to the south-east – leading to a central pedestrian axis, so as to avoid direct access from the busy and dusty main thoroughfare. The inner axis, laid out parallel to the Avenue de l’Indépendance, «forms the backbone of the project, with various services interconnected through shaded passages, where narrow passageways alternate with open spaces and planted courtyards» (Khan eds. 1984, Ibid.). The buildings of the complex are arranged on either side of this axis; two blocks, arranged both along the Avenue and at the central passage, house two dispensaries, respectively, the west one specialising in Endemic Diseases, and the east one specialising in Child Education. At the head of the dispensary for Endemic Diseases is a two-storey cell, the resident doctor’s house, which overlooks a private courtyard. The latter, which also has direct access from the main road, separates the building from the second dispensary.
On the other side of the axis, the block consists of a building parallel to the internal passage, onto which perpendicular buildings of different sizes are grafted. The two largest, housing the maternity wards with a capacity of 70 beds, enclose a semi-private courtyard open towards the river and served by a gallery. The third smaller building houses the delivery room and operating theatre, and also encloses a courtyard around which other buildings are developed at the western end of the plot, including service rooms, accommodation for workers, and a former administration building. In both the courtyards and the central axis, there are existing trees and vegetation, which have been deliberately integrated into the new healthcare complex.
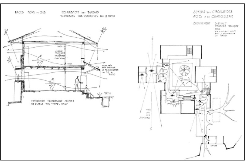
In this project, Ravéreau’s greatest challenge was to find effective solutions to counteract the difficult local climatic conditions. In addition to the use of thick banco walls, which act as a good thermal insulator, he designed filter zones between indoors and outdoors that are always shaded. Once the centre was up and running, these filter zones were particularly liked by the local community, as patients could stay there while waiting for treatment, and meet their relatives, who in turn could cook for their loved ones in the traditional way. With this in mind, Ravéreau decided to rule out the design of a central kitchen, and to equip the maternity gallery with additional benches and a podium for group meetings of various kinds, the latter of which, however, were not built.
Inside the buildings, Ravéreau takes important measures to ensure natural ventilation and lighting. The different ceiling heights, together with the positioning of windows at the top, favour the escape of warm air. In the bedrooms of the maternity wards, additional perforations for natural ventilation of the building are placed close to the floor.
The windows are not glazed, but have metal shutters for both patient privacy and to filter light. These openings are deeply recessed in the walls and protected by protruding masonry ‘eaves’ to prevent direct sunlight from heating the metal shutters. Both the metal shutters and the wooden doors are strictly locally made.
The construction of the Centre with local building materials and techniques is in fact another objective Ravéreau sets himself during this experience. The complex is therefore built with local grey clay bricks, bringing improvements from a technological and static point of view: the walls and part of the horizontal partitions are built of banco[6] stabilised with the addition of 13% cement (see Aga Khan Brief, 2013). The roofs, on the other hand, are made of reinforced concrete slabs with an earthen thermal protection layer. The use of raw earth as a finish gave the structure an ochre colour. Terraces and floors were completed with locally produced terracotta tiles.
The Mopti Health Centre was awarded the Aga Khan Prize in 1980 for the category ‘Research for a contemporary use of traditional language’, however in this regard Ravéreau stated (2003a, p. 149) that the category did not really reflect the guiding principle of his project, which instead consisted in «perpetuating the consistency of earthen construction under appropriate conditions. Its isometry, the quality of the natural material (so appreciated by ecologists) could be developed in the continuity of tradition, without the need to re-educate the local labour force». Because of this, because of its respect for the consolidated fabric and the pre-existence in general, and because of its attempt to integrate the new building into the life of the local community, the Mopti Health Centre is perfectly fused into the context from a formal, structural, climatic, social and economic point of view, even though some critical issues emerged once it was in operation, including the accumulation of dust in the interior rooms due to the lack of glazed windows and the need for improvements to eliminate waste water. However, it should be noted that the budget for the construction of the Health Centre was limited, so the construction site management was not entrusted to Ravéreau, but to the Direction Nationale de l’Urbanisme et de la Construction. Nevertheless, Ravéreau, who visited the Health Centre after construction was completed, was satisfied with the result[7].
Transpositions and syntheses south of the Sahara, towards a “tropical” architecture
In 1980, in collaboration with Philippe Lauwers, Ravéreau drew up the project for the Boarding School of the Technical High School in Ouagadougou, promoted by FED. The project that went as far as the tender, according to Ravéreau’s testimony, was suspended due to political vicissitudes (Ravéreau 2003a, p.151).
The programme called for the extension of the existing lyceum with a boarding school for 360 beds, a refectory and other facilities, including communal bathrooms and showers.
Ravéreau proposed a building composed once again of aggregated cells, but this time of equal size. The study of the ‘mother cell’ was essentially based on the dimensions of a room with two beds, which is doubled to a maximum of four beds per room. The design envisaged three bodies for the rooms and a block containing the refectory and services articulated around a central courtyard covered by a roof terrace connecting the buildings. The complex was to be built in unfired earth and the roofs of the three blocks with vaults without supporting beams per cell.
Ravéreau spoke of this failure in an interview he gave to the magazine Techniques & Architecture, in an issue completely dedicated to architecture in Algeria, rebutting the main criticism made by the Ministry, which blocked the creation of the project by judging it too “Arab” (1980, p.76):
A vault is not Arab because it is a vault. If this is ventilated, if it meets the construction and climatic requirements above all, this is in accordance with tradition. Like the Mesopotamian peoples, after their ecological adventures, we are now in the position of inventing the vault ‘right now’ in the history of the country. If this turns out to be really good, it can become tradition.
This passage is fundamental to understand the logical thread of Ravéreau’s work: the architect prioritises structural and functional requirements, which, according to his reading, are closely linked to issues of climatic adaptation. From these derive the formal aspects of tradition, which differ locally according to latitude; however, the original matrices of architectural elements, such as the arch or the vault, are universal[8].
In the case of the Boarding School in Burkina Faso, while starting from a reading of the local tradition, Ravéreau arrives at results that distance themselves from it and draw on a syncretic imagery of forms and landscapes of the Mediterranean in the broad sense and Africa in general. It is precisely this process of synthesis that sometimes results in professional failure –a similar event occurred for the Hammam Salahine thermal complex (1965-66, not built)[9]– as the proposals put forward were not understood by the administrations involved, while in theoretical production it led to the definition of important stages in that process aimed at identifying a priori categories in architecture (Ruggeri 2020).
A few years later, in 1982, Ravéreau worked for the French Ministry of Cooperation, in association with the architect Michel Charmont, on the French Lyceum project in Nouakchott, which was completed in 1986[10].
The work represents a real departure from the projects previously proposed by Ravérau. Here, he managed to combine the mastery in the use of reinforced concrete, initiated alongside Perret and acquired through professional practice, with the knowledge derived from the study of traditional architecture, although the reference to local architecture was more conceptual than direct.
In the French Lyceum of Nouakchott, Ravéreau reinvents some architectural devices tried out in Algeria, adapting them to the tropical climate of southern Mauritania, characterised by frequent sandstorms.
The complex, similar to the others described so far, consists of three blocks made up of aggregated cells of different sizes. The settlement principle is based on two constraints set by the architect: to expose the smaller fronts of the buildings to the wind and to ensure the greatest possible natural light inside, in relation to the position of the sun throughout the day. The block housing the administrative rooms, the services, the caretaker’s gatehouse and some classrooms for special activities, develops along the enclosure wall bordering the Habib Ould Mahfoudh road; on the opposite side of the road, the building has wooden porticoes and overlooks an internal garden.
The other two school blocks –one for the primary school, the other for the secondary school– undergo a rotation of approximately 45 degrees with respect to the administrative block, following the direction of the winds, east-west. The cells housing the classrooms degrade in order to create wind-protected entrances from a courtyard.
Ravéreau here gave form to a new version of the ventilated double wall system devised in Algeria, which he called mure masque, “mask wall or screen wall”. Whereas in M’Zab the mure masque consists of cement blocks on the inside, and terracotta hollow blocks with a lime and sand plaster finish on the outside, in the Nouakchott Lyceum, for the first time, it is made entirely of prefabricated reinforced concrete pieces. In this particular case, the external part is obtained by using a single precast piece with an L-shaped section, a sort of panel-suspension, placed between pillars and resting on horizontal metal uprights. This device and the perforations placed close to the ground, in the form of French windows, provide effective shelter from the sun. In the windows of the classrooms, in addition to the wall panel, Ravéreau inserted seats to further reduce their height. In the classrooms, natural ventilation is also ensured by means of small perforations at the top, which can be opened by the pupils themselves by climbing up a special rise.
In the M’Zab mure masque, designed for a dry climate with sporadic rainfall, ventilation occurs laterally. In the mure masque of the Sahel, on the other hand, ventilation takes place vertically, allowing the windblown sand to evaporate naturally, and if sandy accumulations occur due to rainfall, they can be removed manually. Ravéreau reused other references from M’Zab repertoire, such as the water drains, clearly inspired by the Algerian Seguià, which are, however, here integrated with reinforced concrete pillars. These are recurring elements in Ravéreau’s works, and constitute a sort of toolkit that is updated and adapted to the sub-Saharan context.
The last page of Ravéreau’s design experiences in the Sub-Saharan context remains on paper. It is the project presented together with Philippe Lauwers in the competition for the French Embassy in Uganda in 1987, of which little evidence remains. One of the requirements of the competition was that the building could be easily defended against possible sieges in the event of social unrest. This is why Ravéreau chose a wooded lot as the site: naturally defended by dense vegetation, the main buildings would be grouped around a central patio to facilitate communication in the event of emergencies.
The response to an extreme climatic condition is always the main consideration around which the project revolves. Here, the humid tropical climate is characterised by frequent rainfall which sometimes does not fall in a direction perpendicular to the ground but follows the inclination of the winds. Ravéreau therefore proposed very sloping pitched roofs, clad in sheet metal: «These roofs, in fact, belong to the Asian roofs in order to respond to this tropical climate close to that of Asia» (Ravéreau 2003b, p.255).
For the vertical partitions of the buildings around the central patio, Ravéreau proposed the mure masque masonry system, with few holes, on the ground floor, in order to achieve greater stability of the building. On the upper floor, instead, the walls would have been made of lighter materials, following the principles of local building tradition. There is no lack of brise-soleil and breathing walls belonging to a “tropical” repertoire and codified by the greatest protagonists of the Modern Movement in sub-Saharan Africa, Maxwell Fry and Jane Dre[11]. Nonetheless, the project did not convince the competition jury, perhaps precisely because it represented one of the outcomes of that long and not always linear process of synthesis and transpositions between architectures from the “South of the way”, which the architect attempted to achieve in his works.
That of Ravéreau is a Sub-Saharan architecture which on the one hand reinterprets the Modern, on the other embraces the tradition of the place, and on the other draws on a repertoire now geographically localised, now imaginary, but always dictated by climatic needs, becoming progressively “tropical” depending on the latitude, according to his personal interpretation.
Notes
[1] See (Pauly 2013).
[2] For further information see (Cohen, Oulebsir and Kanoun 2003, pp. 160-265).
[3] The translation of this quotation and all other quotations in the article were made by the author.
[4] Ravéreau never used unfired earth in Algeria, not even after his construction experience in Mopti. In fact, for the construction of social housing in Sidi-Abbaz (1976), he used the same construction system as in the Hôtel des postes in Ghardaïa (1966-67), where he combined local materials such as stone and sand with cement. For the vertical partitions, Ravéreau used baked earth and concrete blocks. This solution was the most sustainable in that context (See Ravéreau 2003a, p. 140-141).
[5] The Fonds Européen de Développement is a European Union aid instrument for cooperation in the development of African, Caribbean Pacific and Overseas Territories, initially established by the Treaty of Rome of 1959-64, which provided for aid to colonised African countries. The Mopti Health Centre is part of the second agreement signed in Yaoundé (Cameroon) in 1963 between the European Economic Community and eighteen African countries that had gained independence (Algeria and Guinea rejected this agreement). In 1969, when the Mopti Health Centre project began, one thousand six projects were underway and two thousand training grants were allocated (see Potié 2003, p. 90).
[6] Here, the bricks were produced with a hand-activated press, achieving two advantages over the performance of bricks commonly made in the region with wooden moulds: firstly, the compressive force exerted by the press on the bench produces a denser and more resistant brick; secondly, with the press, more bricks can be produced with fewer men and in less time (See Holod and Rastorfer 1983).
[7] Statement made by André Ravéreau to the author of this paper during one of the many interviews held in Lentillères in March 2014.
[8] For more details, see (Ravéreau, Bertaud du Chazaud and Ravéreau 2007).
[9] As in the Boarding School project in Burkina Faso, the Hammam Salahine thermal complex envisaged an aggregative system based in part on the repetition of vaulted cells without supporting beam.
[10] The building is still in good condition and was extended in 2018 by Segond-Guyon Architectes.
[11] For further discussion see (Galli 2019).
Bibliography
AGA KHAN AWARD FOR ARCHITECTURE (2013) – Medical Centre. Project Brief, Aga Khan Award for Architecture, Ginevra.