


























Il
concetto di Case della Salute in Italia trova origine
dall’omonimo convegno ministeriale del 2007, segnando
l’inizio di un percorso, guidato dalle modifiche al titolo V
della Costituzione, che ha trasferito competenze nel campo sanitario
alle Regioni. Di conseguenza, le Regioni hanno iniziato a legiferare
sul tema, come dimostrato dalla Delibera della Giunta Regionale n.
291/2010 dell’Emilia-Romagna, intitolata Casa della Salute:
indicazioni regionali per la realizzazione e l’organizzazione.
(DGR 2010)
Nonostante siano trascorsi solo quindici anni dalla loro introduzione,
nel 2021 risultano operativi 554 istituti con questa denominazione in
Italia, un numero evidentemente insufficiente per strutture decentrate
e diffuse di questo tipo (Pesaresi 2022).
Ma la questione preminente non risiede tanto o solo nella
quantità a livello nazionale di CdS, piuttosto nella loro
collocazione a scala urbana e di quartiere, nonché nella
relazione con l’ambiente circostante e nella qualità
architettonica e spaziale che le dovrebbe contraddistinguere.
L’epidemia da SARS-CoV-2 ha agito come catalizzatore per una
riflessione profonda sulle strutture sociali e sanitarie, svelandone le
fragilità e indicando la necessità di nuovi spazi e
modelli di strutture sanitarie (Quintelli et altri 2020).
In risposta a queste problematiche, all’interno del Piano
Nazionale di Ripresa e Resilienza, si determinano i contenuti del
Decreto Ministeriale n. 77/2022, intitolato “Modelli e standard
per lo sviluppo dell’assistenza territoriale nel Servizio
Sanitario Nazionale” (DM 2022). Politiche di programmazione e di
indirizzo normativo che definiscono le caratteristiche delle Case della
Comunità e ne prevedono un significativo incremento
numerico su
scala nazionale.
Il Piano Nazionale di Ripresa e Resilienza stabilisce
l’istituzione di 1.350 (Italiadomani 2021) Case della
Comunità, poi diventate 1.430 (Openpolis 2023) a seguito
delle
istanze delle Regioni, entro la metà del 2026, utilizzando sia
strutture preesistenti che di nuova costruzione, anche se, in seguito
alla revisione del piano nell’estate del 2023, il numero viene
ridotto di circa 400 unità, così ridimensionando
significativamente la programmazione originaria. Tuttavia,
l’analisi dei progetti finanziati finora ha evidenziato la
scarsità di progetti architettonici qualificati e riconosciuti
dalla critica attraverso pubblicazioni, sottolineando la
necessità di un impegno più marcato nella progettazione,
ancor prima che nella realizzazione, di queste strutture per garantirne
il successo in termini di pieno conseguimento degli obiettivi.
È importante sottolineare che la presenza delle CdS e delle CdC
è significativamente disomogenea nella geografia regionale, con
una maggiore concentrazione nelle regioni settentrionali. In questo
scenario, si nota un aumento della diffusione nella Regione
Emilia-Romagna, tradizionalmente all’avanguardia nel campo
sanitario.
Dall’analisi di una pur limitata casistica italiana, sono state
selezionate alcune strutture comunque significative di CdS e CdC, nei
confronti delle quali è possibile evidenziare qualche primo
aspetto di caratterizzazione come di rilievo critico. Le strutture
selezionate includono: la Casa della Salute di Carpaneto Piacentino
(Provincia di Piacenza), la Casa della Comunità Lubiana-San
Lazzaro (Parma), la Casa della Salute di Casalgrande (Provincia di
Reggio Emilia), la Casa della Salute G.P. Vecchi (Modena), la Casa
della Salute Navile (Bologna), la Casa della Comunità di
Predazzo (Provincia di Trento) e la Casa della Comunità di
Salò (Provincia di Brescia).
Il progetto della nuova Casa della Salute a Carpaneto Piacentino,
realizzato da A+C_Architettura e Città nel 2017, ne prevede il
posizionamento tra la struttura storica dell’ex Macello, la cui
destinazione funzionale rimane al momento sospesa, e l’edificio
postale, trovando al di là dell’area coinvolta la spaziosa
piazza Rossi che, utilizzata principalmente come parcheggio, oltre che
per il mercato, appare come uno spazio asfaltato privo di una
qualità urbana distintiva nella vita di tutti i giorni e con
scarsa attinenza alla CdS se non in termini di area di sosta.
L’edificio si caratterizza per una struttura semplice,
monoplanare e lineare, con elementi distintivi come la forma a
“L” e bracci prolungati che creano una suggestiva
semi-corte verde di accesso, evidenziata dalla presenza rilevante di un
albero preesistente. I corpi lineari prospicienti la corte, con
prospetti vetrati protetti dalla luce solare e dalla pioggia attraverso
uno sporto aggettante, accolgono l’intero sistema di
distribuzione e attesa della struttura.
L’architettura è inserita nell’area in modo da
agevolare la creazione di tre aree verdi e un parcheggio dedicato al
personale. All’interno, due traiettorie di distribuzione si
intersecano nell’angolo centrale, ospitando opportunamente in
quello snodo uno spazio di accoglienza pur se di dimensioni ridotte,
destinato anche a desk informativo e attesa. Una carenza dimensionale
che mette in dubbio l’assolvimento delle funzioni previste
secondo una condizione di reale accoglienza.
Il progetto architettonico sottolinea l’importanza del comfort
visivo e della connessione con l’ambiente esterno da parte dei
fruitori, enfatizzando tali aspetti soprattutto attraverso la
realizzazione di corridoi di distribuzione ampiamente vetrati, secondo
un linguaggio teso a restituire leggerezza ed eleganza formale a quello
spazio. Le aree di attesa sono posizionate anche lungo i corridoi
secondo una prassi purtroppo consolidata, a cui si aggiunge una scarsa
attenzione nella collocazione delle sedute le quali, orientate con lo
schienale contro la vetrata, non consentono agli utenti in attesa di
avere una visione sullo spazio verde della corte. Inoltre, la presenza
delle vetrate lungo lo spazio di distribuzione, sebbene contribuisca al
comfort in termini visivi e di luminosità, non garantisce una
sufficiente privacy agli utenti in attesa.
Considerata la dimensione limitata della Casa della Salute, la
flessibilità dell’impianto anche in termini di ampliamento
non è ipotizzabile se non sul versante della piazza Rossi.
Nel contesto parmense, il progetto per la nuova Casa della
Comunità Lubiana-San Lazzaro, realizzato da Vincenzo Facchino
(S.A.T.) nel 2022, si distingue attraverso un complesso architettonico
articolato in quattro parti, ognuna con una chiara destinazione
funzionale. Le prime tre parti, disposte in modo interconnesso a
formare un unico corpo con struttura a “C”, sono concepite
per ospitare le attività sanitarie e del Polo Sociale
Territoriale. La quarta parte si identifica in un edificio in posizione
posteriore e autonomo rispetto all’altro principalmente destinato
a Centro Dialisi Territoriale, con ulteriori spazi dedicati alla
Centrale Operativa 118.
Il nucleo centrale, identificato come il punto principale di accesso
alla struttura, accoglie un ingresso caratterizzato da uno spazio di
accoglienza che include un desk informativo e per il ritiro referti.
Tuttavia, è evidente che le attuali ridotte dimensioni di questo
spazio potrebbero costringere gli utenti a sostare in attesa sulla
soglia d’ingresso o, in determinate occasioni, all’esterno
della struttura, con evidenti problematiche di congestione
dell’ambiente di accesso. Di fatto, la mancanza di spazi e
servizi d’accoglienza, probabilmente a causa di una progettazione
datata molto anteriore ai nuovi indirizzi normativi, rischia almeno in
parte di compromettere il concetto stesso di Casa della Comunità.
Ai lati dell’ingresso i due corpi connessi al nucleo centrale
ospitano, con una paritetica disponibilità di spazi, la
componente sociale del Polo Territoriale Comunale e la parte sanitaria.
Emergono chiaramente criticità legate a questa rigida
distribuzione aldilà della superficie operativa. La parte
sociale, rappresentata dal Polo Territoriale, gode di ampi e
confortevoli spazi, mentre l’area dedicata alle attività
sanitarie appare sottodimensionata e mediamente affollata. Si tratta di
un impianto incentrato su un unico corridoio, mediamente affollato e
con pochi riscontri verso l’esterno, che presenta dimensioni non
adeguate a supportare in modo completo ed efficace la pur significativa
e qualificata dotazione di prestazioni sanitarie presenti, creando un
ambiente di lavoro non del tutto ottimale per il personale, con
ricadute negative per gli utenti sotto molteplici punti di vista.
Le aree di attesa, spesso ottenute dall’utilizzo di un modulo
ambulatoriale o dalla collocazione di sedute lungo il corridoio di
distribuzione, contribuiscono ulteriormente alle problematiche fruitive
all’interno di quest’area del complesso.
La struttura si sviluppa su un unico piano, realizzata ex novo su
un’area precedentemente non edificata, priva di vincoli, e quindi
originariamente suscettibile di un impianto ad alta qualità
architettonica.
L’accessibilità al complesso è garantita sia
attraverso un ingresso pedonale che conduce all’atrio comune
rivolto sulla via 24 Maggio, sia attraverso un accesso carrabile che
conduce a un parcheggio, posto a lato verso nord, dedicato a utenti e
personale.
Nell’identità formale della struttura emerge
un’evidente discrasia semantica tra l’immagine
architettonica e la natura delle funzioni svolte al suo interno. In
generale le scelte architettoniche non si preoccupano di rappresentare
il valore civile ed urbano che tipizza anche sul piano iconico una Casa
della Comunità.
Il progetto in corso di costruzione per la Nuova Casa della Salute di
Casalgrande, in Provincia di Reggio-Emilia, progettato da Bertani &
Vezzali nel 2017, secondo una tipologia definita come “padiglione
nel verde”, è articolato attraverso blocchi funzionali che
seguono la conformazione a triangolo acuto dell’area. Il
carattere di organicità cellulare del complesso deriva dalla
sequenza di diversi elementi correlati attraverso un ampio ed
articolato percorso distributivo, che svolge anche la funzione di
spazio di attesa, sino al punto nodale in cui si collocano
l’ingresso e l’accoglienza.
La struttura presenta ingressi differenziati, uno principale per il
pubblico, uno separato per la neuropsichiatria infantile ed uno di
servizio laterale corrispondente all’accesso carrabile.
Volumetricamente sviluppata su un solo piano, presenta un risalto in
altezza nella parte dedicata alla zona di ingresso e accoglienza.
L’area non occupata dall’edificio è destinata a
verde pubblico protetto.
La disposizione degli ambulatori e delle sale di trattamento si
sviluppa attraverso zone opposte al lato di accesso principale,
garantendo spazi riservati e protetti. Al contempo l’area comune
di distribuzione ai vari servizi offre spazi di attesa accoglienti e
con duplice esposizione nord e sud, in grado di fornire alta
luminosità e permeabilità visiva anche sotto il profilo
della sicurezza.
Pur all’interno di uno spazio residuale dettato dalle
infrastrutture stradali, gli architetti hanno voluto conferire
identità architettonica e urbana all’edificio attraverso
una rete di relazioni funzionali ed urbane, ricucendo il margine ovest
con la campagna, le corti rurali vicine, l’ampliamento
residenziale recente, i viali di distribuzione e le fasce a giardino
pubblico e privato prossime al centro storico. Questa tessitura si
estende a comprendere la biblioteca, il municipio, il teatro e il parco
pubblico, creando una concatenazione di luoghi urbani integrati nelle
dinamiche del borgo.
Attualmente, l’area include un parcheggio accessibile sia agli
utenti che al personale ed è servita da un marciapiede
ciclopedonale lungo l’intera via Carlo Marx, garantendo un
collegamento eccellente per gli spostamenti a basso impatto ambientale
verso il centro di Casalgrande.
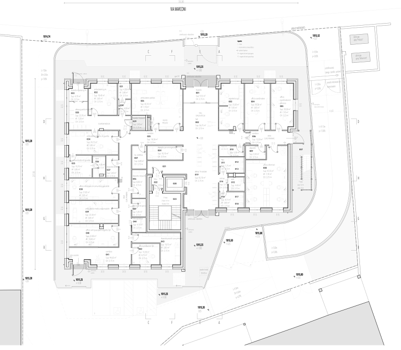
Il progetto per la realizzazione della Casa della Salute G.P. Vecchi a
Modena, realizzato dallo Studio Lenzi & Associati e ZPZ Partners e
completato nel 2020, si sviluppa su quattro piani funzionali, con un
piano interrato e un piano superiore dedicato alla gestione logistica e
impiantistica. L’approccio progettuale si basa su un impianto a
blocco, evidenziato al piano terra da un vasto ambiente,
“piazza” centrale, sopra la quale, tramite uno spazio cavo
verticale, si percepiscono i diversi livelli.
La “piazza” riveste un fondamentale ruolo ordinatore della
struttura, fungendo da punto di ingresso, smistamento e passaggio per
l’accesso anche ai piani superiori, nonché come area di
attesa agli ambulatori. Questo spazio ottimizza la distribuzione
interna dell’edificio ed è anche un punto informativo e di
orientamento per gli utenti.
L’accoglienza e le relative attese sono distribuite su tutti i
livelli dell’edificio a partire dalla “piazza”, con
spazi arredati affacciati sulla cavità centrale. Un elemento
distintivo è l’utilizzo del colore che varia in base alla
sua funzione sanitaria o sociale; questo non solo facilita
l’orientamento degli utenti ma contribuisce anche a creare un
ambiente più “umanizzato” che si discosta dalle
strutture sanitarie standardizzate caratterizzate storicamente dalla
scarsa varietà cromatica.
Un’attenzione particolare è rivolta ai bambini, con una
zona specificamente progettata al piano terra, vicino alla caffetteria,
per intrattenerli durante l’attesa. Inoltre, ogni piano dispone
di posti a sedere dedicati ai più piccoli, creando un ambiente
accogliente e adatto alle loro necessità.
L’identità formale esterna dell’edificio appare
semanticamente ambigua e rispecchia parzialmente la sua funzione
sanitaria e comunitaria, a differenza della caratterizzazione
sviluppata al proprio interno.
L’entità architettonica della Casa della Salute nel
quartiere Navile a Bologna, realizzata da MATE Engineering nel 2018,
emerge in modo significativo, quasi segnaletico, nel paesaggio urbano,
grazie al carattere volumetrico e al rivestimento in pannelli di colore
verde che avvolge completamente l’intera struttura. Aspetti
distintivi che vorrebbero sottolineare l’importanza di questo
grande centro di servizi sanitari afferente alla zona nord-ovest di
Bologna.
La struttura della Casa della Salute Navile si denota per
un’impostazione architettonica compatta a blocco,
all’interno del quale è ricavata, a partire dal secondo
piano, una cavità cortilizia aperta per avere riscontro di aria
e luce, mentre ai primi due livelli si determina un ambiente centrale
chiuso a doppia altezza, comprendente gli spazi di attesa, le aree di
accoglienza e i servizi di prenotazione. Una disposizione su quattro
piani fuori terra, capace di organizzare adeguatamente le diverse
attività sanitarie e amministrative previste.
La scelta di utilizzare una sorta di hall interna coperta come fulcro
delle attività riflette un approccio architettonico orientato a
creare un unico ambiente distributivo centrale, accogliente e
multifunzionale, sebbene presenti analogie con il carattere di una hall
terziaria o di un mall commerciale come evidenziato dalla presenza di
una scala mobile, elemento non del tutto idoneo in un contesto
sanitario per ragioni funzionali e gestionali. La scala mobile,
infatti, non contribuisce ad incentivare attività fisica, non
favorisce l’accesso ad utenti con limitata mobilità
motoria e presenta alti costi di gestione difficilmente ammortizzabili
in mancanza di un forte flusso di utilizzatori.
Lo spazio di attesa presenta una concentrazione delle sedute con
inevitabili conseguenze sul piano acustico, delle logiche sanitarie di
distanziamento e della prossimità ai servizi ambulatoriali.
La fascia basamentale porticata di colore bianco in facciata svolge un
ruolo importante nel segnalare i punti di accesso, dove il portico si
pone come area di transito protetta e al tempo stesso capace di
integrare l’edificio nel contesto urbano circostante.
Sull’esterno, l’ultimo piano coronato da un generoso
cornicione aggettante si distingue per una finestra a nastro
perimetrale di forte presa di luce. Una sommità anch’essa
coinvolta nella preoccupazione segnaletica di un edificio pubblico che
aspirerebbe a diventare un landmark all’interno del paesaggio
urbano circostante.
L’approccio progettuale per la Casa della Comunità di
Salò, progettata da Stefano Boeri nel 2022, adotta un impianto
circolare, articolato su due livelli fuori terra e un piano interrato.
Un edificio inoltre caratterizzato da due elementi distintivi: la corte
aperta e la facciata verde, concepiti come tratti paesaggistici
fondamentali del progetto.
La configurazione ad anello dell’impianto segna uno sviluppo di
percorso oneroso, secondo un unico corridoio attraverso cui raggiungere
i servizi localizzati alle estremità opposte.
I volumi che si affacciano sulla corte aperta sono destinati ad
accogliere le aree di socialità, ristoro e attesa. La copertura
di tali volumi si trasforma in una terrazza aperta, accessibile ai
pazienti della struttura. La corte è concepita per offrire un
ambiente protetto, ma privo di spazi di mediazione coperti ma aperti.
La facciata esterna della Casa della Comunità di Salò si
distingue per ampie vetrate che favoriscono la permeabilità
visiva tra gli spazi interni ed esterni, garantendo così
un’adeguata illuminazione naturale all’interno della
struttura, una scelta che però deve fare i conti con la privacy
degli utenti e degli operatori sanitari. La facciata è integrata
con una struttura in legno, ancorata al sistema principale, che agisce
come sistema di ombreggiamento e sostegno della vegetazione chiamata ad
un ruolo preponderante sino a quello che si definisce ormai di sovente
effetto jungla.
Il progetto punta molto sull’immagine, nella fattispecie della
sostenibilità e del ruolo del verde; tuttavia, è stato
contestato dalla Soprintendenza in quanto la sua attuazione avrebbe
inevitabilmente comportato lo «sventramento del declivio
boscato» nel contesto di inserimento.
L’ultimo caso analizzato di questa provvisoria rassegna di
confronto, la Casa della Comunità di Predazzo non ancora
realizzata e progettata da Weber + Winterle architetti nel 2023,
riguarda un progetto di edificio caratterizzato da un impianto a blocco
che emerge attraverso la sua rilevante struttura su cinque livelli,
compresi un piano interrato e un sottotetto, da cui si ricava
l’entità delle dotazioni funzionali previste. Un edificio
la cui immagine non coglie l’esigenza di denotazione semantica
richiesta da una struttura sanitaria di tipo comunitario nel paesaggio
urbano, rimanendo sospesa tra l’idea del condominio residenziale
e la palazzina per uffici, priva oltretutto di riferimenti di natura
contestuale.
La struttura presenta un ingresso principale e un ingresso secondario
posizionato sul lato opposto, entrambi finalizzati a facilitare
l’accesso allo spazio di accoglienza, il quale, concepito per
fungere da cerniera per l’intera struttura, si trova tuttavia
limitato in termini di dimensioni, risultando proporzionalmente ridotto
rispetto al previsto afflusso di utenti che la Casa della
Comunità dovrebbe recepire.
Definito dai progettisti come «hall / spazio attesa»,
questo ambiente, più assimilabile a un grande corridoio di
disimpegno, viene riproposto su tutti i piani destinati a fornire
specifici servizi e finisce per configurarsi principalmente come un
luogo di attesa standardizzata, con un desk di accettazione, senza una
differenziazione adeguata alle diverse tipologie di utenti.
Uno spazio chiave ma privo di riscontro con l’esterno se non per
le funzioni di accesso e di affaccio sulla strada, quindi privo di
caratteristiche capaci di tradurre situazioni di natura comunitaria,
sia funzionali e percettive che simboliche. Una condizione questa, tra
le altre di natura architettonica, che merita un’approfondita
riflessione sugli aspetti determinanti la soddisfazione degli utenti
all’interno di una struttura di servizio pubblico come la Casa
della Comunità.
Conclusioni
Questo primo itinerario all’interno del contesto italiano, pur
come già detto su un campione giocoforza limitato, ha sinora
messo in luce una carenza di realizzazioni rilevanti in termini di
qualità tipo-morfologica ed urbana delle Case della Salute e
delle Case della Comunità
costruite o in fase di progetto.
Tuttavia, è possibile identificare alcune criticità
ricorrenti che possono essere considerate come paradigmatiche, insieme
ad alcuni tentativi apprezzabili, riguardanti la progettazione degli
spazi richiesti dal potenziale dei servizi integrati previsti.
Dalla raccolta e dall’analisi dei casi svolta emergono come
problematiche predominanti relative a tali strutture la questione
preminente della loro ubicazione a livello urbano e di quartiere, il
rapporto con il contesto circostante, una tipologia distributiva e una
definizione iconica ancora non ben focalizzate sull’innovazione
funzionale e identitaria della Casa
della Comunità.
Queste strutture spesso vengono posizionate all’interno del
territorio in maniera casuale, selezionando aree a disposizione del
Comune o di altro ente di competenza, a volte caratterizzate da
limitata accessibilità specialmente in termini di percorsi
ciclo-pedonali. Inoltre, presentano una scarsa connessione con gli
spazi verdi e con i luoghi e i servizi pubblici caratterizzanti la
condizione dell’aggregazione urbana. Spazi fondamentali di
servizio pubblico che così non contribuiscono ai processi di
concentrazione e di integrazione dei servizi essenziali per la
comunità cittadina.
In altre parole, emerge a volte una scarsa consapevolezza di essere la
Casa della Salute e ancor
più di Comunità
un centro di
servizi pubblici che non si limita solamente alla prestazione
sanitaria, ma che investe in modalità ben più ampia
diverse necessità degli anziani, dei disabili, dei giovani,
delle donne e delle famiglie all’interno della vita di quartiere
nella città contemporanea.
Partendo da questo deficit interpretativo risulta difficile
rappresentare funzionalmente, attraverso forme architettoniche, la
concezione di “salute” indirizzata al miglioramento del
benessere sia individuale che sociale. In questo contesto, è
importante sottolineare come la qualità dello spazio costruito
possa avere un impatto significativo sul funzionamento dei servizi
offerti e, al contempo, sul senso di appartenenza, sulla
rappresentatività e sull’inclusione dei cittadini che
dovrebbero usufruire dei servizi socio-sanitari secondo un approccio
sempre più orientato alla dimensione comunitaria.
Nella progettazione di strutture socio-sanitarie, l’architetto
assume un ruolo di primaria importanza che si estende oltre la mera
estetica e la conformità alle specifiche normative e osservanze
tecniche. La concezione di un ambiente di cura ottimale richiede un
approccio improntato all’identificazione diretta delle esigenze
degli utilizzatori, intesi come soggetti culturalmente denotati,
ponendo l’architetto in prima linea quale agente che si
immedesima nel contesto sociale in cui opera.
Una prospettiva fondamentale non solo per comprendere le dinamiche
funzionali, ma anche per immergersi profondamente nelle aspettative e
nelle esperienze sia degli operatori che dei pazienti, da cui derivare
una logica degli spazi che risponda in modo integrale e antropocentrico
alle esigenze complesse inerenti la cura e il benessere.
Bibliography
AA. VV. (2020) – “La ri-definizione degli spazi di cura sarà un’attività che occuperà gran parte della futura programmazione sanitaria?”. Numero monografico della rivista Forward 17, Maggio.