Questioni compositive attraverso il tipo ospedaliero: un itinerario critico.

Enrico Prandi



Premise
This text can only start from afar, from the ancient “places of care” that have led to the progressive rationalization of the spaces of current health understood as perfect and efficient “machines for healing”: not only and not so much, therefore, an architectural history of hospitals, but of the spatial typologies that have fulfilled over time the task of “assisting and curing” in its various forms (from the care of the spirit and mind even before the body). If we were to imagine a representation of the evolution of the care space up to today’s orientations of decentralized medical care, it could be a circle: from the original hybrid place (the nave room borrowed from the church) we are progressively oriented towards a large functionally rational and specialized organism, the Foucaultian one of the clinic, and then return with territorialized health care to multifunctional typologies to be reinvented. In this evolutionary process, the type of the place of care, except in rare cases, has literally expelled from design the architect responsible for the typological reinterpretation to rely on a rational, functional, engineering conception that led to the great complexes of the second half of the twentieth century.
The spread of territorial and proximity medicine, relaunched by the crisis of hospital-centric health systems that occurred with the Covid-19 epidemic, has provided the reasons and tools for a rethinking of basic health facilities with a view to first care, the so-called Health Houses more recently evolved into Community Houses with the addition of social assistance. Multifunctional organisms par excellence that have their raison d’être in the creation of an integrated system of functions (medical, social, health and welfare). As architects, it seemed to us, then, an opportunity to regain that ‘lost space of architecture (and of the architect) of typological reinterpretation’ starting from the most significant historical examples collected here.

From the Asklepeion to the Community House: for a complex and integrated notion of care
There is no doubt that the history of the typology of the space of care has followed the evolution of medical technique, science and culture, so much so that from the priest healer, the definition of the specialist doctor corresponds to a progressive spatial organization divided into specialized areas that leaves little to typological invention.
In the cities of ancient Greece, where the architectural typologies are the result of collective rites, the Asklepeion, generally located outside in a sort of holy ‘other-city’ (the sanctuary defined by the sacred enclosure), places the Temple of the God of Medicine Asclepius in a central position, surrounded by elements typical of the public spaces of the agora such as the long loggias (stoas that contain the cells of the sick). It was only after the third and second centuries B.C., however, that the places of hospitality were configured as the result of the relationship between the method of treatment and the space used for medical assistance through the creation of rooms reserved for the sick. Not yet a real hospital building but an articulated place in which the different elements such as the wood, the spring, the temple participate in the ritual of healing. Significant are the Asclepei of Epidaurus, Pergamon and Kos of the fourth century B.C. In the case of Epidaurus, the Asklepeio is part of a composite system distributed within the sacred enclosure that includes the dormitories, the Altar and the Temple of Asclepius and the Abaton, that is, the space (a two-storey portico) for the healing sleep of the sick. In the case of Pergamon, on the contrary, the Asklepeion is isolated and separated from the concentration of public functions to form “an urban architecture of complete form as a superimposition of continuous additions that follow or have in mind a general design” (Aymonino 2005). In the last case, that of Kos, the Asklepeion takes the form of an ascending path organized on two large courtyards and three terraces: the first, at the bottom, contained the rooms of the sick, the second terrace contained the Abaton and the two Temples dedicated to Apollo (the father) and Asklepio (the son) while the third terrace was dominated by the large Altar dedicated to Asklepius.
It is interesting to note that the term hospital itself (which denotes the place currently dedicated to care) originated from a subsequent series of spaces formerly dedicated to hospitality, even before that to care. Hospitalis was, in fact, the part of the Roman house reserved for guests (hospes), i.e. the place where travelers were welcomed. The Roman domus often had a space for care, so much so that it became the model for the Iatreo, which had already established itself in Greek times as a domestic place for the care of the sick, the archetype of the modern clinic. If private care was exercised at the domestic level, public care was affirmed through the characteristic institution of the Valetudinaria, in the two declinations for slaves and soldiers, i.e. the two productive entities of Roman society. Each permanent Roman camp had a military valetudinaria which, together with the Baths, the Praetorium, the Quaestorium and the Gymnasium, constituted the endowment of public buildings for the community (TABANELLI 1960). According to Roman practice, the Valetudinaria were mostly large square courtyards with a building distributed by a central corridor and the rooms arranged on both sides as in the case of Vengadissa in Switzerland and Vetera in Germany, while in some cases it could appear as an elongated rectangle court (Novaesium in Germany).
In the subsequent affirmation of Christianity, from 313 A.D., reception and assistance was incorporated into the institutional tasks of the Church and practiced above all in convent places and abbeys in large indistinct spaces. The formal passage took place with the Council of Nicaea in 325 A.D., which imposed the obligation for each city with a cathedral to establish a hospital directly connected to the church and directly managed by the clergy. The Hospitiolum or Hospitium were in fact “hospitable places” where assistance and care were mostly given by men of faith and not by men of science, even though it was empirical as it was at the time. Medicine, in fact, consisted of medicinal remedies, such as herbal preparations, and surgical remedies, such as bloodletting and incisions of various kinds. It is not surprising, therefore, that one of the oldest hospitals in the East, that of Caesarea in Cappadocia (present-day Israel), was founded between 368 and 372 A.D. by St. Basil, bishop of the city. Thus progressively the East came to equip itself with various welfare institutions such as gerontocomi, xenodochi, brefotrophs and hospitals.
In the West, the drive for the evangelization of beggars and pilgrims led in the Middle Ages to the construction of numerous Xenodochia located near the parishes on the main communication routes: however, they still do not have a precise typological reference due above all to the type of medical assistance that has not yet been scientifically defined. As an alternative to the Tabernea, run by lay people, the Xenodochia offered pilgrims places dedicated to meditation and healing and were arranged no more than 30-35 km from each other, the distance that could be covered in a day’s walk. The first Xenodochia arose towards the end of the fourth century, as evidenced by that of Ostia (398 A.D.) which, despite its evident derivation from the temple, shows the characteristics of a greater articulation by virtue of the presence of a porticoed courtyard that precedes the Basilica and hospital rooms next to the court. In the case of Termanin in Syria, the two constituent parts of the structure are clearly separated: on one side the large hall surrounded by a portico while on the other the autonomous and separate basilica.
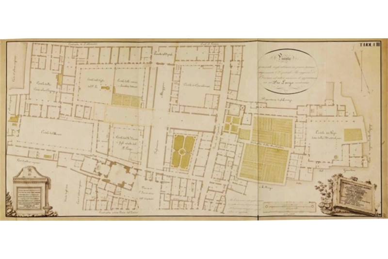
It is above all the religious orders – Benedictines, Cluniacs and Cistercians – who are responsible for the construction of the structures for the care of the sick, which cannot yet be identified as characteristic or characterized from an architectural point of view. In the convent or abbey typological organism, therefore, the spaces of assistance and care conform to the typology of the spaces of worship mostly with a linear development, with one or more naves, with the altar placed in a terminal position as required by the rule oriented towards the east. This is the case with the Benedictine Abbey of St. Gall in Switzerland.
The project was influenced by the dictates of reception and assistance inherent in the Rule of St. Benedict and included, within the medieval abbey complex, a hospital care system similar to the layout of the convent itself. 
The abbey church separates the hospices, dedicated to any passing guests, welcomed in the entrance area and the hospital complex proper, located to the east. The main nucleus of the latter is arranged symmetrically around a minor church, the central axis of the project, equipped with a double altar, to allow simultaneous use by the sick housed in separate areas. The functional spaces are designed according to a precise division that separates them into places of hospitalization and care. On either side of the church, two cloisters connect two distinct and equal departments (men and women) organized with rooms, dormitories, latrines, rooms for the sick, contagious and related services: refectory, meeting space and overseer’s quarters. The rooms for general services, kitchen and bathrooms, are separate from the wards and different for each department. The facility is completed on one side by the cemetery, on the other by the bloodletting buildings, pharmacy, room for serious cases, the doctor’s quarters and the medicinal herbs garden. (LI CALZI 2008, 63).
In this period it is possible to identify two invariant elements from which to borrow the hospital: the church and the cloister. Thus the typology of the Gothic church offers itself to the interpretation of a single large hospital room (with one or three naves) with windows open on the long sides, while the cloister becomes the container of the service spaces.
In the Benedictine Abbey of St. Augustine of Canterbury in England, the infirmary was added using the small courtyard (little choister) as a joint. It consists of a rectangular hall and 3 naves of 75 x 21 m. The convent of Cluny in France also obeyed substantially the same rules, so much so that in the twelfth century an extension added the new infirmary consisting of a large room divided into three naves (55 x 27.5 m), connected to the old infirmary through a square cloister.
Cistercian abbeys are no exception and use the same model. In the abbey of Fountains in England there is an infirmary room with three naves of about 55 x 25 m which has the particularity of being a bridge over the stream, probably for reasons of hygiene and water supply.
If, on the one hand, the complex self-sufficient convent structure had in the church-hospital the element dedicated to the care of the sick, on the other hand, the medieval city incorporated the hospital into the urban structure, in progressive and constant expansion, replacing, adapting and rewriting from time to time the spaces intended for services compared to the large hall of the sick. This is the case of the French Hôtel-Dieu and in particular that of Paris on the Ile de la Cité where the rooms with a single infirmary remain recognizable, gradually added to the point of saturation of the urban spaces and forced to expand beyond the Seine by means of bridges built for use as infirmaries.

At the same time, the discipline of medicine was progressing rapidly in the East, giving rise to hospitals typologically borrowed from the type of the royal palace, in which for the first time there is also the Medical School, as in the case of the al-Mansur Qalawun Hospital in Cairo in the thirteenth century. At the basis of this different typological paradigm there were the equally different medical-scientific beliefs not based on religious practice, so much so that it is precisely in the East, in continuity with the Greek tradition, that the medical discipline developed.
As part of the birth of the clinic, the school took on an increasingly important role until it determined a perfect symmetry between the two parts: hospital and school. Typologically, the porticoed courtyard becomes the matrix to be replicated for the organization of the various functions.
In Turkey, in particular, it is the buildings used for the hospitality of the poor and wayfarers, such as caravanserais, that provide a typology to be adopted for the development of the hospital. One of the first hospitals in Istanbul, the Suleymaniye is placed around the precincts of the Mosque along with the main public functions to build a. 
The typology of the courtyard, with protected passages for the use of separate hospital rooms, becomes functional to the care systems that evolve and are tested in direct contact with the patient. In this phenomenon, which was significantly secular, we can recognize the impulses that would determine the birth of the first hospital clinics in Europe only in the eighteenth century. (LI CALZI 2008, 84).
In the context in which this study is inserted, parallel to the development of the medical clinic, pharmacology also assumes particular significance based mainly on the use of simple herbs, grown in gardens intended as medicine gardens.

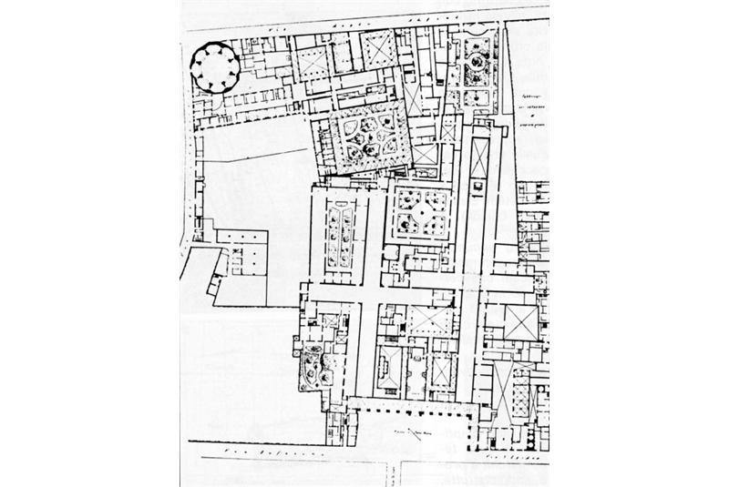
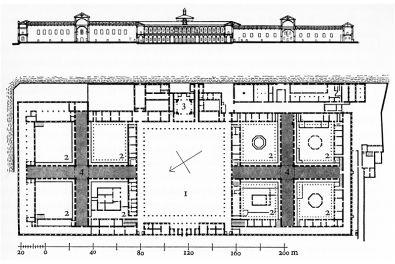
If the hospital-monastery turns out to be poleogenetic, giving rise to cities (as for example in the city of St. Gallen), the new fifteenth-century society imprints a renewal in the organization of the sick and in the management of the hospital even before the architectural typology. Users begin to be divided: the poor, wayfarers and pilgrims from the sick and the latter further divided by categories (the acute from the chronic, but also by sex): a modern complex now managed by secular power. We are witnessing the birth of an autonomous typology (the cross type) intended as a modern hospital factory. The highest example of a renewal that involves both the idea of the city and that of society (not without symbolic significance) can be found in the Ospedale Maggiore, the so-called Ca’ Granda, in Milan, begun in 1456 by Antonio Averlino, known as Filarete. The latter had in fact placed the Hospital in the ideal city of Sforzinda alongside the great urban facilities such as the Palazzo del Signore, the Theatre, the Cathedral, the Market, etc.
As had already been the case in the past, the basic typological element consists of the courtyard: a large central courtyard, and four smaller porticoed courtyards, located on both sides, divided by as many cross-shaped bodies.

In the conception of the hospital there is a fundamental conceptual inversion: if the medieval hospital is the image of the church and the monastery, the Renaissance one, as a representative building of the new organization of the city’s power, is the image of the civil palace and as such assumes its role and dignity.

So that in this new renewed setting it will be the church that will be incorporated into the hospital and not vice versa.
If the cross already appeared in Florence in the Hospital of Santa Maria Nuova (1445), Lombardy and Emilia were the territories in which it spread progressively and perfected: in Brescia (1447), Pavia (1449), Mantua (1450), Milan (1456), Lodi (1459), Como (1468), Piacenza (1471) and Parma (1476). The arrangement of the partly overlapping double cross of Florence gives way to a precise geometrization that is also consistent with the symbolic models of the Renaissance.
During the 1600s, there was a fundamental geometric reworking based on the combination of courtyards and crosses to determine a typological layout closed as an enclosure towards the city and above all autonomous.
Towards the end of the century, a typological form began to appear, destined to have a certain success in the 1700s, consisting of the ‘panoptic’ radial scheme generated by the dual need to multiply the bodies while maintaining the functionality of the paths.
A subsequent typological change occurred with the appearance of the so-called Almshouses, i.e. residential welfare structures intended for the poor that consisted of opposing linear buildings connected at the head on one side by a main body, resulting in an elongated open courtyard. This typology, later adopted in some British hospitals, was the archetype for another innovative type destined to be used also for other functions of associated life (e.g. university campuses) such as the parallel and isolated pavilion system. At first without any kind of physical connection, which will appear later, the square or rectangular pavilions were arranged on geometric planimetric schemes subordinated to an axis of symmetry at the end of which the main building was generally located. So was Christopher Wren’s Royal Naval Hospital in Greenwich (1694-1702) and Alexander Rovehead’s later Royal Naval Hospital in Stonehouse, Plymouth (1758-1764).
The competition for the construction of the Hôtel Dieu in Paris (1777-1788), following the fire of 1772, made a decisive contribution to the imposition of the pavilion hospital as a typological model for the modern hospital. The occasion of the competition of a hospital for a large city such as Paris was already at that time catalyzed the attention of the various disciplinary knowledge, contributing to a decisive advancement of knowledge in the medical, scientific and architectural fields. It is no coincidence that Michel Foucault (1976) defines them as “healing machines” that obey not only a formal aesthetic principle but a functional order: “the hospital-building is organized little by little as an instrument of medical action” (Foucault 1975). More than two hundred projects solicit the consciences of doctors on medical and scientific problems, giving rise to what he called the “birth of the clinic”: “the architecture of the clinic is progressively defined by a series of controversies about the internal order, location, size, distribution and number of these new machines, designed to heal a large number of patients in economy” (Foucault 1963).
In the encyclopaedic manualistic process that dominated the second half of the century (see Diderot and D’Alembert) the hospital entered to all intents and purposes as a protagonist on a par with large public buildings. However, it is always the sanitary concept of ventilation that justifies the adoption of separate and independent pavilions, which can therefore benefit from correct ventilation seen as a therapeutic tool. This is the case with the projects of the Hotel Dieu in Paris, such as the pavilion hospital by Jean Baptiste Leroy (1773), which refers directly to the type of the Royal Palace (that of Marly), which is characterized by a large rectangular courtyard on either side of which are the parallel and isolated pavilions that contain the patient rooms, while two separate courtyards contain the general services and administration. The layout is symmetrical and on the bottom of the axis, there is an exedra portico with the church in a central position. A variant of the pavilion hospital is the Radial or Panoptic Hospital by Antoine Petit (1774). In this case, six long buildings are connected by an external circular courtyard, while at the central junction there is a round room with a chapel that culminates in a conical fireplace that becomes the main element of air exchange. It should be noted that the central position that has always been occupied by the religious function is now occupied by the fireplace in its important technological function. In Bernard Poyet’s subsequent panoptic design (1785), the multiplication of the pavilions in a radial pattern, as many as sixteen, imposes a minimal variation in the central space, no longer symbolically occupied by the full chimney but by the void of an open courtyard at the center of which is a religious temple.
The latter project is substantially coeval with the Panopticon project by Jeremy Bentham (1785-1791), a prototype of a building designed to contain a school, a factory, a hospital or a prison, which will become the basis for the development of a whole series of theoretical demonstration projects developed during the 19th century for museum, social, etc. functions.
Although it appeared as early as the Renaissance, in nineteenth-century hospitals the anatomical theater or scientific theater also imposed itself , understood as the space of medical research and teaching that takes the form of an amphitheater with stepped seats facing the dissection table. Although it was originally configured as a typologically uncharacterized space, being mostly obtained in conventional rooms set up with wooden steps, it will have a fundamental importance for the purpose of an internal typological variation of the treatment spaces, which have now often also become places in which to impart the medical discipline. Alongside the treatment spaces, therefore, the typological spatial palimpsest will be enriched with spaces in which to study diseases or make medical knowledge transmissible: classrooms, lavatories, laboratories, etc.
The typological evolution of the care and care spaces also contributes to the organisms created for specific categories of needy people as a modification of a principle (also scientific) that saw all types hospitalized in a single structure and often in a single space at most grouped by functional needs. Thus were born in Italy the Hospitals of the Incurables also intended for the insane, the syphilitic and in general the chronic, the Houses of San Lazzaro for lepers, the Lazzaretti for the contagious in the not infrequent cases of epidemics, the Hotels for the poor, born from the social need to save the unemployed from delinquency. Starting from the 1600s (which will be followed by the eighteenth-century reforms) the trend towards a more complex and structured organization of medical care will follow the same process of classification and subdivision of pathologies and a progressive different organization of medical knowledge in specific disciplines.
An interesting case in which medical assistance intersects with social assistance by sharing the typological structure is the experience of the English Workhouses also known as Poorhouses, a type of hospice for the poor born following the spread of the Black Death Pandemic of the 1300s and which had a typological evolution between assistance, control and possession distinguishing the characteristics of the plant. It is precisely in this progressive modification of social welfare needs, especially following the New Poor Law of 1834, that there is an increase in the debate, including architectural debate, with a consequent proliferation of architectural projects.
Thus it was that the architect Sampson Kempthorne, whose father was a friend of the head of the legislative commission, began to develop a series of Workhouse models: the first consists of a 3-storey cruciform plan enclosed in a low square body that delimits four internal courtyards divided between women, men, girls and boys. If the central cross-shaped part was reserved for residential functions, the perimeter body housed laboratories and shops that overlooked the inside of the courtyard while outside everything was bordered by walls. Organisms closed to the city, so much so that they earned the nickname of “pauper bastilles” (bastilles of the poor) that progressively adapted more and more to the model of the Benthamian panoptic, inspiring from a formal but also conceptual point of view the subsequent projects of hexagonal shape (with the central body in the shape of a Y) and octagonal radius. It is precisely this tendency towards the conceptual model, containing and reclusive of the panoptic, that earned Kempthorne’s projects the fiercest criticism, so much so that he was harshly attacked even through a criticism that nowadays would be called comparative.
Progressively, the typological model adopted shifted towards the more classic pavilion type, often used as an extension of existing workhouses, as in the case of Manchester, in which the additional body of the infirmary, consisting of five linear pavilions with three floors forming a comb, are connected to the ground floor by an open portico.
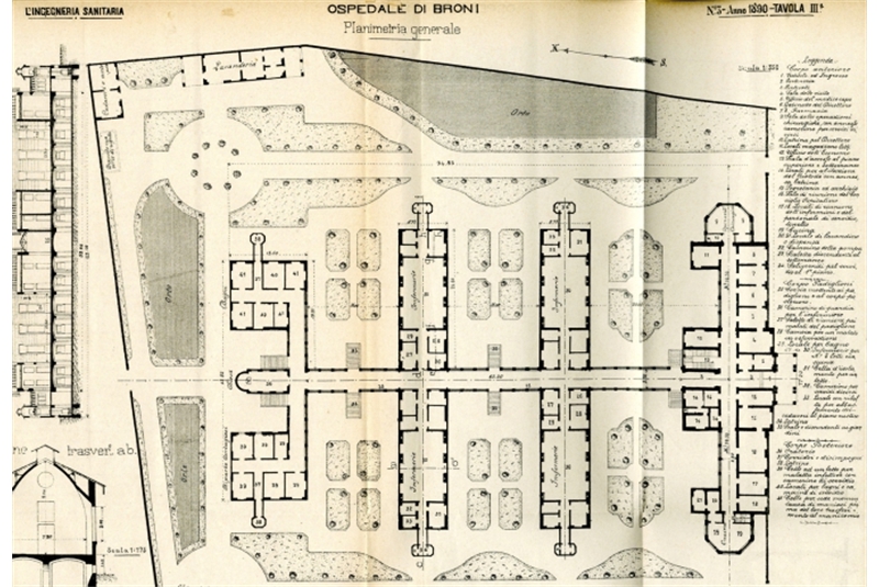
With the spread of nineteenth-century manuals, even in Italy the pavilion hospital was taken as a model and developed, perhaps by virtue of a more limited demand for seats, according to a typological variant that sees the pavilions coupled and replicated in parallel while the central courtyard replaced by a porticoed path or alternatively a single linear connecting building that distributes to the pavilions on both sides. The model hospital of Andrea Busiri, an academic professor of San Luca published in a study of 1884, and the hospital of Broni by Febo Bottini of 1889-90 are examples of these two typological variants.
Between the 1800s and 1900s, the pavilion model underwent geometric adaptations and changes in scale, also through the increase in the green area, which often contributed to defining it as a “garden-hospital”, until it reached mixed typologies as in the case of the Forlanini hospital in Rome by Emanuele Caniggia (1934) or the Niguarda hospital in Milan by Ing. Giulio Marcovigi with the contribution of Giulio Ulisse Arata (1939).
The link between the pavilion hospital and the monobloc hospital, which constitutes the subsequent typological model of modernity, is constituted by the project of the Brescia hospital by Ing. Angelo Bordoni (1938), a typological hybrid that combines the idea of the block hospital with the idea of pavilions. A hexagonal courtyard, in turn divided by six radial connecting paths, connects at the vertices to as many Y-shaped buildings. Three central axes distribute from the body of the separate entrance to two other external bodies.
The proto-functionalism of the Brescia hospital (designed not by chance by an engineer) will give way to Fordist functionalism that sees the rationalization of the paths (horizontal and vertical) as the most important aspect. The monobloc will grow above all in height (from 4/5 floors up to 12 or more in America) and will impose itself in the urban body more in the unitary and heavy mass than in a typological articulation.
The monobloc type, to which the polyblock type will be added, matures as a result of scientific, medical and technological developments (the latter not dissimilar to those that led to the imposition of the skyscraper type) and can be considered as a development in height of the pavilion principle. An example of this typology can be taken from the Hôpital Beaujon in Paris of 1935 by Jean Walter, Urbain Cassan & Louis Victor Plousey, in which the planimetric layout formed by 4 wings connected by a transversal body is replicated for almost 10 floors to determine a complex of considerable architectural mass.

Apart from a few exceptions, on the threshold of Rationalism, the hospital became the field of engineering design (from individual engineering specialists such as Marcovigi to today’s engineering companies) with the architect who, when present as in the case of Giulio Ulisse Arata in Niguarda, intervened on the aesthetic aspect but not on the typological one.
In the same period, however, the parable that goes from the discovery of care to the definition of the environments for the treatment of sanatorium diseases provides rationalist architects with a typology to be invented and interpreted according to the canons of modern architecture.
If, on the one hand, hospital specialization excludes architects from hospitals, on the other hand, the invention of health facilities and specific treatment centers such as anti-tuberculosis dispensaries (Gardella, Alessandria, Sert-Torres, Barcelona), heliotherapy colonies (BBPR, Legnano, Del Debbio, Rome), marine colonies (Mazzoni, Tirrenia, Busiri Vici, Cattolica, Vaccaro, Cesenatico, etc.) or sanatoriums (Duiker, Hilversum, Lurcart, Puy de Dome, Aalto, Paimo) in which modern architects can assert themselves in their primary role.
It is precisely in the characterization of these care spaces outside the hospital (in Italian cases also net of the rhetoric of the regime) that we find that well-balanced attention between functional device and architectural identity that can be taken as a starting point for the design of contemporary Community Houses.

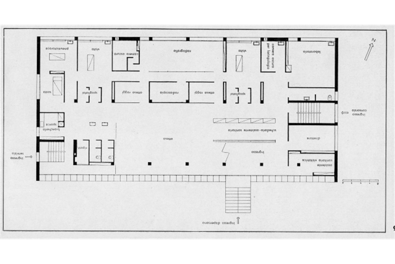
In the case of the anti-tuberculosis dispensaries, on the one hand Gardella in Alessandria (1936-38) and on the other the rationalists of GATEPAC, Sert, Torres Clavé and Subirana in Barcelona (1934-36) implemented the same envelope with modulated transparencies (thanks also to the use of glass blocks in both buildings) within different planimetric systems; linear in the case of Alexandria, L-shaped in the case of Barcelona. It is precisely in Barcelona where, in addition to the spaces for prophylaxis and preventive analysis of tuberculosis diseases, there is a library and an auditorium, perhaps in an attempt to enrich the strictly sanitary equipment with cultural and social functions useful to the population.
The heliotherapy colonies had a strong impulse in the Fascist era to combat childhood rickets and in general to encourage the strengthening of young people from the lower classes through exposure to the sun. They are often placed on the outskirts of cities in the healthiest positions and organisms that seek the best sun exposure in the conformation of the system. If the BBPR in Legnano (1937-38) adopted a composite layout divided into two formally geometric parts, the large hall on one side and the ancillary rooms on the other with the stairwell acting as a pivot, Enrico Del Debbio in Rome (1933-35) made the adaptation to the place a compositional principle that, starting from the head, first developed in a linear manner and then curved around a circular garden. Less constrained to the environment are the marine colonies, which were nothing more than heliotherapy colonies placed near the sea in order to enjoy thalassotherapy to the fullest.
Sanatoriums were also substantially based on the principle of heliotherapy and were structures created to counteract long-term chronic diseases, typically respiratory diseases such as tuberculosis.
Among the out-of-hospital care spaces, this is the case in which the structure is closest to the traditional hospital in terms of size characteristics. Nevertheless, there is no adoption of hospital typological models, but the invention of types that, in addition to conforming to the landscape, become total institutions and “collective housing models”. Architectures perfected as “typological devices to capture the sun” through terraces or verandas as an extension of the living rooms or, in ideal cases, as real outdoor rooms.
Finally, sanatoriums allow us to recover a significant European experience conducted by architects of the Modern Movement. We imagined these spaces through the most famous sanatorium in literature, the Berghotel Schatzalp in Davos, designed by Otto Pfleghard and Max Haefeli of Zurich in 1899 and beautifully described by Thomas Mann in The Magic Mountain. Unlike the latter, which is very advanced from the point of view of therapeutic spatial conformation but still rather vernacular in its architectural language, the examples we cite also accompany a specific typological reflection in adopting, for example, the principle of steps in section, as Tony Garnier did in the project for a heliotherapy establishment (1917) designed as part of the sanitary sector of the Cité Industrielle. ,
As far as the realizations are concerned, however, the Zonnestraal sanatorium in Hilversum by Jan Duiker (1920-28), is the first reference built by reinventing the typology of the pavilion through a logic of free articulation in the space often characterized by valuable natural wooded landscapes. The individual parts, therefore, are simultaneously subject to both the general principle of the layout and the principle of asymmetries of modern architecture.
Coeval with Duiker’s sanatorium is André Lurçat’s Puy de Dome sanatorium in Durtol (1929), a planimetrically linear building that takes advantage of the slope of the land to divide the 6-storey height into 3 portions. The attention to the patient’s home is maximum, including the functional need for direct exposure to the sun, solved by rotating the bed directly on the outdoor balcony.
But it is above all Alvar Aalto, who had the opportunity to visit both the Duiker and Aalto sanatoriums on a trip in 1928, with the Paimio Sanatorium (1929-33) who succeeds in making sanatorium architecture a syncretic example of functional and aesthetic quality.
Aalto himself writes that “The primary purpose of the building is to function as a medical instrument... One of the basic requirements for healing is to offer complete peace” (Pallasmaa 1998, 17). We discover a vocation of Aalto himself in the design of sanitary spaces since before Paimio he had built the small municipal hospital of Alajärvi (1924-28), two homes for the elderly and participated in the competitions for the spa in Pärmu, Estonia and for the sanatorium in Kälviä. In 1931, he also participated in the competition for the central hospital in Zagreb, but did not rank. “The unique quality of the project lies in the combination of strictly functional and technical criteria with shrewd psychological considerations” (Pallasmaa 1998, 17).
The latter were probably also due to the concrete identification of the needs of the patient that Aalto had been able to make since the personal experience of a hospitalization while he was designing the sanatorium had led him to accentuate the patient’s point of view with respect to the hospital environment, that is, it had allowed him to put himself in the condition of maximum weakness.
Mostly known as an architectural masterpiece that occupies a precise place both in the history of European architecture and in the works of the Finnish master, the Paimio sanatorium fully expresses the conception of humanized architecture. Unlike the same current that spread in the design of health care buildings in the second half of the twentieth century – the humanization of the hospital – in which the need is detected as a medical necessity, the humanization of Aalto’s architecture starts from the architect as necessary attention to the psychophysical needs of man (Aalto 1940).
It is precisely in an article published in the MIT magazine in 1940 that Aalto gives as an example the design attention paid to the patient that he himself adopted in Paimio.

The latest typological evolution of the place of care in its hospital form is characterized by a horizontal rather than vertical development in defining a structure commonly called “plate”. Thanks to the imposition of the megastructural movement of the Sixties, which affected all the main public urban functions, the hospital also adapted to this trend, becoming a complex mechanism for the concentration of differentiated spaces and places (wards, hospitalizations, diagnostic services, operating blocks and university clinics). In this way, different spaces and functions are integrated, so that in its complexity the hospital itself becomes a metaphor for the city and also introjects its distributive and spatial taxonomy, for example in defining internal streets, paths or squares, large central reception spaces. Among these complexes is the Mc Master Health Center in Hamilton, Canada by Eberhard H. Zeidler (1965-71), a large, almost square modular plate from which emerge the transparent towers that contain the ski lifts. The planimetric density creates an intercalation between served and serving spaces within which the voids necessary to give air and light to the interiors alternate. The modular order of the upper floors contrasts with the more disorderly ground floor in the insertion of exceptional functions and spaces such as the large conference room.
In Italy, there are more project proposals than actual constructions of hospitals based on this typological model. The competition for the new hospital in Venice in 1963 in its most interesting invention consisting of the “Tadzio” project by the group Romano Chirivi, Costantino Dardi, Emilio Mattioni, Valeriano Pastor and Luciano Semerani provided inspiration to Le Corbusier for the famous turbine plant later developed into a single-storey organism in the project that the Swiss master presented in 1965.
Both the Mc Master Health Center and Le Corbusier’s Hospital can be ascribed to the examples of plate compositions, also known as Mat-Building, according to the formulation of Alison Smithson and Shadrach Woods, evidenced by their project for the Frei Universitat in Berlin in 1963.

A variant of the slab hospital is the slab-tower hospital in which, starting from the one- or two-storey slab base, some functions are concentrated in a block developed in height, “tower-shaped”. This is the case of many structures that we still use today, which have grown over time due to progressive additions that are not part of an organic design.
The demographic contraction, the territorial dispersion and an endemic lack of financial resources to invest in healthcare construction have meant that in Italy the issue of care spaces and more generally of hospitals has essentially taken a back seat, at most the subject of autonomous specialist additions or isolated integrations. The last thirty years of the Short Century dominated the last thirty years of the short century, such as the two hospitals built by Luciano Semerani, in Trieste Cattinara (1969-71) and Venice (1979-83), and Carlo Aymonino’s project for the New Hospital in Mestre (1988), later completed by Emilio Ambasz.

To bring attention back to the theme of the Hospital, Renzo Piano has also thought of it who, at the head of a working group1 identified together with the then Minister of Health, Umberto Veronesi, creates a new model of Hospital that will be included in the National Health Plan 2001-2003 based on a decalogue of intent consisting of as many keywords such as Humanization: Urbanity: Sociality: Organization: Interactivity: Appropriateness: Reliability: Innovation: Research: Training.
Despite the fact that the commission hoped for the construction of 40-50 hospitals throughout Italy (which would have completely refounded the system of care spaces), there are few hospitals that adopt these premises. A meta-project remains of that prototype that also involves the typological aspects:
It is a new TYPOLOGY OF HOSPITAL, WHICH WE WANT TO DEFINE multiblock, WHICH WOULD LIKE TO CAPTURE THE GOOD OF THE TYPOLOGY WITH PAVILIONS (= HUMAN SIZE) AND MONOBLOC (= GOOD FUNCTIONALITY OF THE MACHINE, GOOD PATHS BUT ALIENATION).
THE NEW TYPOLOGY IS DESIGNED TO BE ABLE TO EFFECTIVELY COMBINE PLEASANTNESS AND FUNCTIONALITY (Mauri 2001)..
Coming to the present day, we can consider this brief but truthful (as Longhi wrote about his history of Italian art) a history of the type of welfare-hospital and its relationship with the city to be concluded.
However, not before mentioning a last experience, in some ways paradigmatic, which concerns the international competition for the new hospital in Cremona alongside the previous one. Recent news has been the choice of the winning project from the shortlist of the five finalists selected for the second phase: MCA - Mario Cucinella (Bologna), Park Associati (Milan), Foster + Partners (London, Great Britain), Baumschlager Eberle Architekten GMBH (Lustenau, Austria), O.M.A. Office for Metropolitan Architecture (Rotterdam, Netherlands). We are not given to see the projects not yet published except that of the winner, Mario Cucinella, a large circular ring that in the best contemporary Italian tradition shows off a landscape semblance stuffed with a sustainable technological apparatus but which forgets the great typological-compositional lesson.
Renzo Piano’s pupil would have been expected to adhere more closely not so much to the general principles of the meta-project, but to that typological suggestion defined as “multiblock, which would like to grasp the good of the pavilion (= human size) and monobloc (= good functionality of the machine) typology that Piano himself indicated in the document and which he translated into some of his prototypes.
From the first press releases relating to the competition, old and new slogans such as “city within the city”, “garden covers” and “climate forests” leak out. A “non-architecture” hidden in an artificial green landscape that colludes with the nearby “great river”, the Po, and its precise geometries: provided, as so many recent cases teach us, the features are not a specious exaggeration of the renderer on duty. Here, however, it is imperative to suspend the judgment pending more detailed material.

In consideration of the purpose of this article – not an in-depth historical research on the type of hospital but a contribution of critical-cognitive support to the design – the search for a prototype of a Casa della Salute/Casa di Comunità, i.e. a new architectural type, is an operation to be carried out on the basis of the interpretation of the historical experience of the care spaces, while analyzing the needs and potential in terms of urban devices.


Notes
1 The Commission of the Ministry of Health, chaired by the Minister prof. Umberto Veronesi, coordinated by the architect Renzo Piano, for the study and development of a new hospital model with high technological and healthcare content. Piano-Veronesi project model, 2000 was made up of 16 members: Raffaela Bucci, Giuseppe Caggiano, Antonio Cicchetti , Vittorio De Martino, Paola Di Martino, Velia Gini, Claudio Giuricin, Maurizio Mauri, Marcello Mauro, Laura Pellegrini, Michele Pintus, Manlio Tesio, Alessandra Vittorini.


Bibliography

AALTO A., (1940) - “The Humanizing of Architecture”, in The Technology Review, November, pp. 14-15.
AA.VV., (1979) – L’architettura della salute. Numero monografico della rivista Hinterland n.9-10, may-august
AA.VV., L’Architettura della salute. Luoghi e storia della Sanità lombarda, Regione Lombardia
BANCHIERI G., (2019) – Ospedali di comunità case della salute cure primarie, Joelle.
BELVEDERE F., (2010) – Lo spazio ospedaliero: tendenze in atto e indirizzi progettuali, Tesi di Dottorato, Università di Palermo.
BOLOGNA R., Torricelli M.C., (2021) – Gli spazi della salute, in Romano del Nord. Teoria e prassi del progetto di architettura, Firenze University Press, Florence.
CAPOLONGO S., (2006) – Edilizia ospedaliera: approcci metodologici e progettuali, Hoepli, Milan.
COBOLI Gigli S., Monico G., Carabillò M., (2001) – “Il progetto Veronesi”, in Progettare per la Sanità, 64, pp. 28‐37.
COX A., Groves P., (1995) – Ospedali e strutture sanitarie, Dario Flaccovio Editore, Palermo
DALL'OLIO L., (2000) – L’architettura degli edifici per la sanità, Officina, Rome
DEL NORD R. (edited by), (2008) – L’Ospedale del futuro. Modelli per una nuova sanità, EdA/4, Il Prato, Padova.
DIANA E., (2002) – “L’architettura dell’ospedale nella sua evoluzione storica”, in Salute e Territorio, anno XXIII, n.131, pp. 80‐91.
FERRANTE T., (2008) - Hospice: luoghi, spazi, architettura, Alinea, Florence.
FERRARESI M., Pedace C., Tiezzi G., (2002) – L’ospedale di comunità. Una nuova risorsa nel panorama dei servizi sanitari, Il Pensiero Scientifico.
FONDI D., (2002) – Architettura per la sanità. Forma, funzione, tecnologia, Edizioni Kappa
FOUCAULT M., (1963) – Naissance de la clinique: une archéologie du regard médical (trad. it. Nascita della Clinica), Presses Universitaires de France, Paris.
FOUCAULT M., (1975) – Surveiller et punir: Naissance de la prison, (trad. it. Sorvegliare e punire), éditions Gallimard, Paris.
FOUCAULT M., (1976) – Les machines à guérir: aux origines de l'hôpital moderne, Institut de l'environnemen, Paris.
GIGLI G., (1994) – Ospedali: esperienze, progetti, normative, tecnologie, Gangemi Editore, Rome.
GRECO A., Morandotti M., edited by, (2011) – Edilizia ospedaliera: esperienze e approfondimenti per una progettazione consapevole, Alinea 2011
GRUBEN G., Die Tempel der Griechen, Aufnahmen von Max Hirmer, Hirmer Verlag, München, 1980,
LI CALZI E., Bellini G., Del Boca G., (2008) – Per una storia dell’architettura ospedaliera, Maggioli.
MAURI M., (2001) – “Ospedali a misura dei bisogni di salute del territorio”, intervento al Congresso Forum P.A., 7‐14 maggio, Roma. Disponibile presso http://archive.forumpa.it/forumpa2001/convegni/7/7.2/maurizio_mauri/maurizio_mauri_72.pdf
MASCIADRI I., (2012) – Ospedali in Italia. Progetti e realizzazioni, Tecniche Nuove.
MELLO P., (2000) – L’ospedale ridefinito: soluzioni e ipotesi a confronto, Alinea, Florence.
MELLO P. (edited by), (1999) – Spazi della patologia. Patologia degli spazi, Associazione Culturale Mimesis, Milan.
MENS N., Wagenaar C., (2009) – Health care architecture in the Netherlands, NAI Publishers, Rotterdam
MEOLI F., (2015) – Innovazione organizzativa e tipologica per l’ospedale, Nuove proposte distributive, Gangemi editore, Rome.
MONL T., (2004) – Hospital Builders, Wiley‐Academy, London.
PALLASMAA J. (1998) –  Alvar Aalto, verso un funzionalismo sintetico, in REED P. (edited by), Alvar Aalto 1898-1976, Electa.
PEVSNER N., (1986) – Ospedali, in Storia e caratteri degli edifici, Palombi, Rome
PETRILLI A., (1999) – Il testamento di Le Corbusier. Il progetto dell’Ospedale di Venezia, Marsilio, Venice.
PRASAD S. (ed), (2008) – Changing Hospital Architecture, RIBA Publishing, London.
REDSTONE L.G., (1978) – Hospitals and health care facilities: an architectural record book, New York.
ROSSI PRODI F., Stocchetti A., (1992) – L’architettura dell’ospedale, Alinea editrice, Florence
SACCHETTI L., Oberosler C., (2022) – Architetture resilienti per la sanità territoriale. Linee guida per la progettazione: un nuovo modello di Ospedale di Comunità, Franco Angeli
SPINELLI F., Bellini E., Bocci P., Fossati R., (1994) – Lo spazio terapeutico. Un metodo per il progetto di umanizzazione degli spazi ospedalieri, Alinea, Florence.
STONE P., (1980) – British hospital and health‐care buildings: design and appraisals, The Architectural Press, London.
STUDIO AUA, “Concorso nazionale per il nuovo ospedale civile Venezia San Giobbe”, in “Casabella. Continuità”, n. 289, luglio 1964, pp. 16-19.
TERRANOVA F. (edited by), (2005) – Edilizia per la Sanità, UTET, Turin.
TORRICELLI M. C., (2020) – “Gli spazi della cura come prolungamento della città”, in “Forward”, Spazi della cura
VERDEBER S, Fine D.J., (2000) – Healthcare Architecture in an era of radical transformation, Yale University Press, New Haven and London.
VERDEBER S., (2010) – Innovations in Hospital Architecture, Routledge, New York.
WAGENAAR C., Mens N., (2019) – Hospitals a design manual, Birkhäuser, Basel.
ZANELLA R., (2022) – La sanità di prossimità. Case della salute, case e ospedali di comunità, farmacie multi-servizi nelle città dei «quindici minuti», Il Pensiero Scientifico.