



















Introduzione
Polesello entra in contatto con il contesto delle Isole Canarie all'inizio degli anni Ottanta. Nel febbraio del 1983 partecipa al primo Seminario Internazionale di Progettazione Architettonica presso l'Escuela Técnica Superior de Arquitectura dell'Universidad Politécnica de Las Palmas de Gran Canaria, in qualità di visiting professor. Con lui vi sono altre importanti figure internazionali quali Josef Paul Klehiues, Manuel de Solá-Morales e Fabio Reinhart. Nel 1987, insieme a Juan Manuel Palerm Salazar, Juan Ramírez Guedes, Manuel Bote Delgado, e Benito García Maciá, gli viene commissionata la progettazione di un complesso universitario, oggi comprendente le facoltà di Scienze del Mare, Matematica e Informatica. L'articolo qui proposto inizia con una generale descrizione del progetto, realizzato solo in parte, per poi soffermarsi sui riferimenti ai quali Polesello ricorre e che ne hanno caratterizzato la composizione. L'obiettivo è quello di individuare la maggior parte di questi rimandi, rapporti, legami, ecc. Analizzandoli, si possono evidenziare le relazioni con il contesto e l'opera, chiarendo le ragioni di tali scelte. Il motivo di unione tra tutti i riferimenti può essere visto proprio nel viaggio, fisico e culturale, che l'architetto compie per arrivare alla sintesi proposta. Un sistema che ha permesso l'apporto e il dialogo di elementi provenienti da mondi lontani e che apparentemente hanno poco a che fare gli uni con gli altri. In generale, si può affermare con Ildebrando Clemente che «Due strumenti compositivi governano le invenzioni nei progetti di Polesello: il reticolo geometrico e gli assi di rotazione» (Clemente 2016, p. 148).
All'interno dell'articolo si entra più nel dettaglio dei vari riferimenti progettuali utilizzati identificandone la provenienza e avanzando delle considerazioni; una sorta di Grand Tour tra i ricordi, le suggestioni e le intuizioni di Polesello in cui si mostrano le ragioni delle sue scelte compositive.
Descrizione del progetto
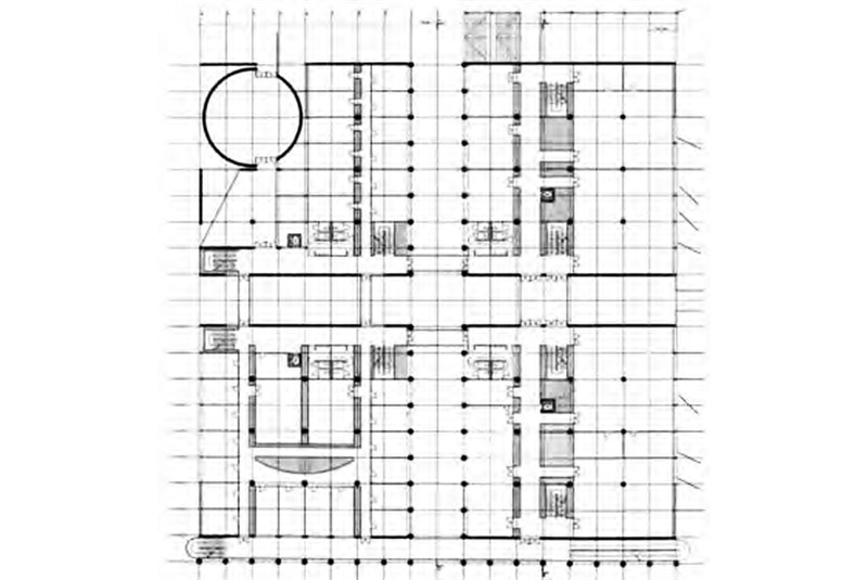
L'area di intervento si trova nel campus di Tafira tra via Lomo Blanco, l'ex Seminario Diocesano e la facoltà di Architettura dell'Universidad de Las Palmas de Gran Canaria. Il progetto si divide in tre unità e segue, con alcune modifiche, le direttive del Plan Parcial, vale a dire un'organizzazione a maglia geometrica regolare composta da moduli di 30x30 m distanti 7,5 m. Il rapporto con il sito è mediato da un grande podio basamentale di 150x150 m che segue l'andamento del terreno da sud a nord, con l'accesso da sud, la prima unità del progetto. Polesello divide poi tale spianata in quattro grandi quadranti[1]. I due meridionali, gli unici costruiti, si articolano in otto moduli e racchiudono le facoltà di Scienze del Mare, Matematica e Informatica. Nei due quadranti settentrionali inserisce altrettante piazze, pavimentate e situate a quote differenti, con al loro interno la biblioteca centrale e degli spazi commerciali.
Nell'estremo settentrionale dell'area colloca la seconda unità: una piazza triangolare in pendenza delimitata da un corpo in linea che segue il confine del lotto e formato da tre moduli affiancati più altri due separati, sempre di 30x30 m, di cui uno con diversa angolazione. Il terzo settore, più a ovest, è composto da un teatro all'aperto e da un auditorium. All'interno dell'area, una strada passa tra la zona del teatro/auditorium e il resto del complesso, collegando via Lomo Blanco con la parte settentrionale del campus. Vi sono inoltre vari parcheggi che vengono posizionati sotto gli edifici, approfittando della pendenza del terreno. Uno di questi occupa parte dei piani inferiori dei quadranti meridionali a nord-ovest, un altro si trova in corrispondenza del corpo in linea, e l'ultimo in prossimità dell'auditorium. L'impianto è concepito come un grande affaccio verso Las Palmas e il mare che si confronta con le emergenze naturali circostanti. Polesello dispone pergolati e filari di palme attraverso il complesso, in modo da delimitare la grande area triangolare centrale, i patii e i perimetri degli edifici. In sintesi, il progetto è costituito da tre unità con una diversa caratterizzazione geometrica, collegate da percorsi pedonali e ampie zone aperte che dialogano con il contesto.
Prima unità
La prima unità si trova nella parte meridionale dell'area ed è formata dal grande quadrato di 150x150 m. Essa si divide poi in quattro piattaforme artificiali, di 67,50x67,50 m, separate tra loro da quadrivio di percorsi con una sezione di 15 m. Le piattaforme sono situate a diversi livelli in base alla topografia del terreno: quella sud-est alla quota zero, sud-ovest e nord-est a -3,75 m, e nord-ovest a -7,5 m. Il complesso si trova a circa trecento metri sul livello del mare. Sulle piattaforme sud-est e sud-ovest si trovano gli otto moduli di 30x30 m; entrambe sono alte 11,25 m, tagliate da vie secondarie in direzione nord-sud. Queste strade sono caratterizzate da un unico fronte colonnato orientato a nord e che si affaccia verso le due piazze sottostanti. Tali vie colonnate sono attraversate da ponti che collegano i moduli alle quote 3,75 m e 7,50 m. Le colonne sono predisposte per il posizionamento di tende di tela per ripararsi dal sole. Il peristilio lungo il lato nord è separato di 3,75 m dalle pareti dei moduli e mostra due balconi, uno alla quota 3,75 m e uno alla quota 7,50 m, che si affacciano sul resto del campus. Le connessioni verticali all'interno degli edifici sono garantite da scale e ascensori, e nelle aree esterne da rampe e passerelle (Polesello et alii 1989, p. 120). La piattaforma sud-est accoglie i dipartimenti di Informatica e Matematica, quella sud-ovest il dipartimento di Scienze del Mare e altre strutture universitarie. A nord-est si trova la biblioteca centrale in un doppio volume e a nord-ovest un parcheggio, una zona commerciale e servizi vari. L'Aula Magna a gradoni allocata nell'edificio cilindrico è accessibile da fuori tramite scale localizzate sul fronte sud-est. Il progetto è regolato da con un modulo di 3,75 m che corrisponde alla distanza tra gli assi della struttura esteriore. Tutte le misure si referiscono a questi assi, anche le altezze dei piani.
Il sistema portante è composto da colonne in cemento armato con diametro di 0,75 m, separate da intercolumni costanti di 3,75 m e che troviamo tanto all'esterno come all'interno dei moduli, da travi in acciaio che normalmente poggiano sulle colonne a modo di pergolato, da solai reticolari e da pareti piene come quelle a nord e a sud. I solai reticolari gravano su travi in acciaio di tipo IPE, con una luce di 7,50 m, o su travi con profili a «C», con una luce di 3,75 m (Polesello et alii 1989, p. 123). A volte gli impianti sono lasciati a vista, altre vengono nascosti con delle bande in alluminio verniciato e fonoassorbente. La prima unità, sui lati est e ovest, era anche dotata di brise soleil, oggi rimossi, configurati come se fossero delle pareti ruotate di 45°.
Quanto ai materiali è opportuno evidenziare che la luminosità e la flessibilità rappresentano le caratteristiche fondamentali del progetto. I solai sono continui e le partizioni interne, che devono permettere l'illuminazione negli spazi didattici e di lavoro, mostrano pannelli prefabbricati assemblati a secco con strutture metalliche. Le pareti perimetrali sono fatte di moduli in vetrocemento, per garantire un buon isolamento termico, e con fasce finestrate per l'aerazione e gli affacci verso l'esterno (Polesello et alii 1989, pp. 126-127). In corrispondenza della piattaforma nord-ovest era presente un estanque circolare (bacino idrico artificiale utilizzato per l'irrigazione) che Polesello decide di mantenere e includere al complesso.
Seconda unità
La seconda unità si sviluppa longitudinalmente, è delimitata dalle piattaforme artificiali che sorreggono i plessi universitari e si apre verso un settore del lotto con forma triangolare in cui si trova una piazza in pendenza dotata di ampi spazi verdi (Polesello et alii 1989, p. 120). Scendendo verso valle vi è un edificio in linea, parallelo al limite settentrionale dell'area e composto da tre moduli in serie di 30x30 m, per un totale di 90 m, e da due liberi disposti diversamente. Un modulo è sfalsato rispetto al corpo in linea e l'altro è girato secondo un asse che parte dall'angolo sud-ovest della piattaforma sud-est e che incontra a 90° la diagonale del rettangolo formato dalle due piattaforme settentrionali, vale a dire le piazze a diverso livello. Tutti i moduli contengono servizi universitari che in fase di progetto dovevano ancora essere definiti. Gli edifici sono di tre piani con altezza corrispondente alla quota zero della piattaforma sud-est.
Terza unità
La terza unità si trova a ovest della strada che attraversa il lotto ed è composta da un teatro all'aperto, un auditorium e alcuni edifici di servizio. Questo settore è connesso agli altri due mediante un sistema di gallerie verdi, sorta di pergolati, che si sviluppano in quota intorno alla grande piazza triangolare poggiando sui due quadranti settentrionali della prima unità e sul corpo in linea della seconda. Oltrepassando la via sottostante, questi percorsi confluiscono in un nodo distributivo con scale e ascensori che danno accesso agli spazi comuni utilizzati per il divertimento e lo svago. Il teatro all'aperto è analogo al Teatro Grande di Pompei e il paraninfo è un grande salone polistilo che può essere utilizzato per spettacoli di vario genere (Polesello et alii 1989, p. 120). Il nucleo di servizio soddisfa le esigenze del teatro e dell'auditorium.
Riferimenti progettuali
Il progetto di Polesello include riferimenti a diversi luoghi, epoche e culture. Questi riferimenti, in dialogo tra loro, hanno a che vedere non solo con le preesistenze di Tafira, ma anche con il mondo mesoamericano, quello greco e quello romano. Altre suggestioni provengono dal contesto canario urbano e rurale, dall'ambito marittimo e navale, dalla geometria euclidea e dall'opera di Paul Klee e Le Corbusier. Piramide azteca, impianto romano, acropoli greca, miti, storia del luogo: si tratta di forme pure, elementi ricorrenti nell'architettura di Polesello, che nel progetto di Las Palmas nascono e si configurano in maniera diversa. La loro analisi risulta interessante proprio perché permette di identificare le ragioni della scelta di tali rimandi e capire come l'architetto li assembla tramutandoli in forme. Polesello disegna un progetto complesso in cui questi riferimenti, che non sempre si manifestano con chiarezza, si intersecano con frequenza.
Seminario Diocesano e Plan Parcial
Il progetto redatto dallo studio di architettura di Polesello nasce sulla base del Plan Parcial, redatto precedentemente, che stabiliva la sistemazione del lotto tramite una maglia di moduli quadrati distanti in modo uniforme tra loro. L'architetto viene interpellato non per disegnare il Plan Parcial ma per realizzare il progetto del complesso universitario secondo le direttive dello stesso. Nonostante ciò, nel progetto è possibile trovare elementi che fanno pensare a una contaminazione tra il piano e l'ex Seminario Diocesano[2] adiacente al sito. Delle tre unità progettate, la prima e la terza sembrano evocare alcuni aspetti architettonici del seminario. È necessario ricordare che il Seminario era stato progettato per altri scopi, ma al momento della commissione a Polesello rappresentava un'istituzione educativa, similmente al campus universitario. Come riportato in una conversazione con uno degli architetti locali, Manuel Bote Delgado, nella realizzazione del progetto[3] vi era la volontà di stabilire un rapporto con il Seminario Diocesano. Nel fare ciò, attraverso l'osservazione del complesso, si può notare che l'elemento che permette di legare maggiormente le due opere è quello del claustro centrale del Seminario. Polesello rielabora quest'elemento nei due quadranti meridionali della prima unità costruendo otto moduli attraversati da strade e colonne. In questo modo si creano dei patii interni sui quali affacciano le aule e gli uffici, evocando chiaramente la tipologia del cortile del Seminario Diocesano.
Il rapporto con il sito, però, è mediato da un elemento che Gianugo risolve in modo personale. Da un lato, il Plan Parcial prevede un sistema di edifici attaccati al terreno, dall'altro Polesello concepisce un progetto basamentale, un podium, di 150x150 m senza fare uso della maglia geometrica nello stesso modo ma giocando con la sua ricomposizione, aprendo lo spazio e rielaborandone i moduli. Ne risulta un affaccio verso il mare, non si nasconde ma si evidenzia. Il podio guadagna spazio, non guarda soltanto alla città ma anche all'orizzonte marino nella direzione opposta, verso l'interno del territorio; si crea una condizione grazie alla quale l'opera è in grado di tessere nuove relazioni con il contesto. Tale particolare rapporto con il sito fa intendere una visione dettata da elementi della cultura mediterranea e non canaria[4]. I portici creano uno spazio dal sapore antico, semi coperto, che permette di godere dell'architettura, delle viste e che al tempo stesso protegge dal sole, e le colonne che li costituiscono hanno un carattere mediterraneo. La grande spianata quadrata ha il compito di mediare con il pendio naturale, tramutandolo, facendo un'operazione formale che evoca, per grandezza e carattere, le basi piramidali mesoamericane come quelle del Templo Mayor, situato nel centro storico di Città del Messico, o del sito Mixteca-Zapoteca di Yagul, a Oaxaca. Nei punti in cui il podio spicca di più rispetto al terreno, per i dislivelli naturali, si palesa maggiormente il parallelismo con le piramidi mesoamericane.
Talud-Tablero
In una fase successiva alla costruzione del primo complesso[5], Polesello si reca alle Canarie dove incontra un collaboratore e amico locale, Juan Sebastián López García, con il quale affronta il tema di questo sguardo visivo. Gianugo si rende conto della relazione tra Gran Canaria e l'America Centrale. Effettivamente, le Canarie sono un ponte nell'Oceano Atlantico che lega l'Europa e il Nuovo Continente (Gutiérrez Viñuelas et alii 2018). È in questo momento che l'architetto rafforza una delle caratteristiche estetiche dell'opera che aveva previsto in fase progettuale. Come è possibile osservare nella sezione longitudinale in direzione nord-sud del progetto (Polesello 2000, p. 75), Polesello mostra un tipo di conformazione piramidale denominata talud-tablero[6]: un sistema compositivo formato dalla sovrapposizione, in sezione, di una forma trapezoidale e una rettangolare con aspetto più marcato. La parte inferiore a profilo trapezoidale viene chiamata talud, mentre la superiore a profilo rettangolare viene chiamata tablero (Cash 2005).
La componente geometrica del talud-tablero è evidente osservando i lati est e ovest dei moduli, dove sono integrati i brise-soleil ruotati a 45°. Ogni lato di ogni modulo, composto da talud e tablero, è ulteriormente suddivisibile in talud-tablero tramite i piani: il piano terra e il primo piano formano un trapezio che culmina nella zona verde coperta dalle pergole. Il secondo piano, di sezione quadrata, configura il tablero. Ma come raccontato da Juan Sebastián López García[7], anche tutto il podio può essere visto come un talud-tablero: come un grande basamento in cui la base (il talud) è costituita dalla piattaforma artificiale e le componenti rettangolari verticali (il tablero) dai moduli edificati. In effetti, una piramide mesoamericana è composta da più sovrapposizioni di talud-tablero.
Pianta e Sezione
Polesello, nell'articolo in cui descrive il progetto su Zodiac (Polesello 1990), posiziona sulla sinistra la pianta con la maglia ortogonale e sulla destra la sezione in cui è leggibile la forma piramidale. La scelta di presentare il progetto in pianta e in sezione, affiancate, è sintomatica anche delle ragioni che lo animano. Due mondi che dialogano: le forme verticali dell'architettura mesoamericana da un lato, la vista dall'alto e la reticolazione romana dall'altro. Tali aspetti raccontano quanto l'architettura di Polesello ricorra a una complessità e sovrapposizione di mondi. Anche la foto della pagina seguente, quella dei gradoni dell'aula circolare, rimanda alla concezione piramidale mesoamericana. Per non escludere, infine, neanche il riferimento al cosmo, Polesello pianifica l'illuminazione naturale di tale aula in corrispondenza degli equinozi di primavera e autunno[8]. Questa è la prova di quanto l'architetto sia attento anche all'aspetto temporale: sole-ombre, terra-cielo, nord-sud, ecc.
Fondazione e limiti
La maglia geometrica e i 30x30 m possono essere anche riletti come il fondamento di qualcosa, il limitatio della centuriazione romana, la sistemazione del territorio che i Romani impiegavano nei nuovi territori. Tracce di centuriazione erano presenti nelle campagne venete quando Polesello, da ragazzo, cresceva all'interno della casa di famiglia di Villa di Villa a Cordignano, in Provincia di Treviso. La dimensione che Gianugo aveva potuto osservare dei vari appezzamenti era quella che corrispondeva alle misure degli actus (Amistadi 2019, p. 280). Questa misura equivale a circa 35,5 m, quindi leggermente maggiore ai 30 m scelti per il progetto universitario. Forse non è un caso che, pur adattandosi al Plan Parcial, tale misura ricordi l'architettura del proprio contesto di provenienza. A ciò può essere aggiunto anche il fatto che nelle Canarie è effettivamente possibile rintracciare la presenza romana[9] e che tra le Isole Canarie e l'Italia esistono delle connessioni archeologiche non ancora chiarite del tutto.
L'idea di fondazione che permea il progetto può essere letta nell'opera Ad Parnassum di Paul Klee, del 1932, esposta al Kunstmuseum di Berna: dipinto a piramide in cui gli strati di colore si sovrappongono realizzando una scala cromatica di varia natura (diverse tipologie di colori e pennellate), fino a raggiungere la porta con l'arco a tutto sesto in cima alla piramide. Per Polesello, tale opera potrebbe rappresentare la sintesi tra geometria, arte del costruire e arte figurativa. La concezione di strati che si compenetrano e che al tempo stesso danno una consistenza concreta a una forma archetipica, la piramide, va ad arricchirsi nel collegamento tra la superficie bidimensionale del dipinto e l'elemento architettonico costruito: la porta in cima. Potrebbe trattarsi di una porta che delimita lo spazio che collega i due mondi, quello figurativo e quello architettonico. Ad Parnassum è la parola latina che accompagna la musica della Clavier-Übung di Johann Sebastian Bach, il cui testo è scritto nello stile di un graduale[10]. Anche in questo caso, i gradini/gradoni, che ricorrono in Polesello e sono presenti anche nel progetto universitario delle Canarie, assumono una lettura metaforica, ossia il significato ascensionale di avvicinamento al divino (Parnaso è il luogo dove risiedono le divinità greche). L'ascensus però può avere altri significati non necessariamente divini, ma riferiti alla fondazione e all'atto fondativo. Nel progetto si ritrovano dei gradoni nei quali l'idea di ascesa è assimilabile a quella della piramide (costruita per gradini), ma è assimilabile anche a tutta la campagna canaria fatta di bancales, che sono delle piattaforme di terreno predisposte per permettere l'agricoltura nelle aree di forte pendenza (Palerm Salazar 2019).
Immagine, elemento edilizio e paesaggio si fondono quindi in una sintesi formale. Gli strumenti compositivi adoperati da Gianugo, ritrovabili in questo caso nell'opera di Paul Klee, permettono di raggiungere la sua tipica polisemicità, intesa come capacità di un elemento di assumere diversi significati, oppure la possibilità di una forma di derivare da mondi diversi: la porta in cima alla piramide è il luogo del sacro, la porta è il varco dimensionale che collega architettura e pittura, i gradini sono riferiti al rito romano del tracciamento della limitatio, i gradini sono i bancales della campagna canaria, la piramide è la montagna sacra mesoamericana, la piramide è il monte Parnaso, la piramide è costruita tramite sovrapposizione continua di talud-tablero, e l'elenco potrebbe continuare. Una molteplicità di letture che l'opera permette di sviluppare e che non si escludono tra loro ma addirittura si rafforzano.
Acropoli e Teatro
Il podio quadrato di 150x150 m trova rimando ideale, oltre che nel mondo romano e in quello mesoamericano, anche nel mondo greco. Gianugo dichiara che quella prima unità ha un carattere di acropoli (l'acropoli è la città alta, generalmente un affaccio a gradoni), e inoltre specifica che questo affaccio guarda alla «Città antica» (Polesello 2000, p. 76). Ciò che è certo, osservando questa prima unità, è che il riferimento alle città e all'architettura antica, e alle acropoli greche, è piuttosto esplicito.
Un ruolo analogo è assunto dal teatro all'aperto, vale a dire l'elemento più occidentale della terza unità. Come è possibile notare, nella tavola di presentazione di Polesello, il teatro greco-romano risolve il rapporto con il pendio. L'immagine, con una foto del Teatro Grande di Pompei e una sezione del teatro progettato da Polesello, vuole rimandare a un aspetto specifico dell'architettura dell'Antica Roma[11], che invece l'acropoli, posta in cima alla collina di Tafira, rimanda all'architettura Greca (acropoli di Atene[12]). Cioè due modi di appoggiarsi nel sito secondo due diverse culture: da un lato la maglia astratta che conquista un territorio, dall'altro lo scavo e lo sfruttamento del pendio. Polesello usa il podio come elemento organizzativo e basamentale del progetto, ma anche il rapporto con la pendenza. Volendo utilizzare le parole di Luciano Semerani «L'attenzione al costruito nell'opera di Gianugo Polesello, la capacità di concretizzare ogni concezione spaziale, sono caratterizzate, sin dai primi anni della sua attività, da una considerazione simultanea che si potrebbe chiamare "tellurica e tettonica" e che è nello stesso tempo rispettosa della natura ma anche della topografia del luogo, nonché di quella che è stata la sua costruzione storica, la sua stratificazione delle culture come delle tecnologie del territorio» (Semerani 2000, p. 26).
Rotazioni, Assi, Triangoli ed Esagono
Oltre ai concetti di acropoli e di teatro, o di forma piramidale, vi sono altri riferimenti ai quali Polesello ricorre. Tra questi, risulta di particolare interesse la seconda unità. Come si è detto, essa presenta dei moduli ruotati in modo da seguire l'asse che parte dall'angolo sud-ovest della piattaforma sud-est e che interseca perpendicolarmente la diagonale del rettangolo formato dalle due piattaforme settentrionali, formando idealmente una croce. La rotazione e l'asse che si interseca con un altro asse hanno un preciso rimando nell'opera di Le Corbusier. A tal proposito è opportuno riconoscere l'importanza dell'architetto svizzero-francese e di quanto i suoi progetti siano serviti a Gianugo nell'elaborazione del proprio linguaggio architettonico. Le Corbusier, nel 1911, passa attraverso i Balcani per raggiungere l'Acropoli di Atene e ritornare poi in patria passando per l'Italia. Il viaggio, essenzialmente fatto a piedi, fa parte di quello che possiamo definire il suo Voyage d'Orient (Le Corbusier 1966). L'esperienza di questo viaggio è fondamentale per lo sviluppo di temi ricorrenti nella poetica corbuseriana. I temi degli assi incrociati e della rotazione possono essere trovati in uno dei primi schizzi che Le Corbusier fa della cittadella albanese di Argirocastro, nel 1911. Secondo Mirjana Lozanovska (Lozanovska 2017), questo schizzo è «come una tipica veduta corbuseriana a volo d'uccello in cui si intrecciano due assi principali, geometrie architettoniche e topografiche, elementi curvi e ortogonali». Come afferma Lozanovska, Le Corbusier descrive nel suo Voyage d'Orient «la cittadella e la moschea di Argirocastro in termini dei due assi, l'uno del paesaggio lungo la valle e l'altro della moschea lungo il pendio».
In un altro disegno che l'architetto svizzero-francese fa sempre ad Argirocastro, «la topografia incontra l'architettura attraverso un sistema compositivo di diagonali ruotate». Questi due momenti diventano importanti per Le Corbusier e ricompaiono in progetti successivi, sintetizzabili con il termine ars ruinandi con il quale ci si riferisce «all'allineamento scenico di edifici ed elementi di forme ed epoche diverse su un molo o su un asse obliquo rispetto al perimetro del sito» (Lozanovska 2017). Tale metodo, secondo Lozanovska, è evidente in molti progetti tra i quali il progetto per il Mundaneum o il progetto per Algeri del 1930-34. Anche Gianugo sembra ricorrere a questo metodo con il quale assemblare forme ed elementi sulla base di rapporti tra loro e con il contesto. Nelle parole di Polesello ritroviamo inoltre la conferma di quanto il Voyage d'Orient di Le Corbusier e le atmosfere albanesi siano rilevanti: «nemmeno oggi me ne libero del tutto, l'eco della dalmazia, degli schizzi dell'Acropoli e dei villaggi albanesi di Le Corbusier risuona per me ancora tanto forte» (Polesello 2000, p. 76).
In relazione a questo aspetto, si può cercare di individuare nel progetto universitario il tema degli assi incrociati e della rotazione. Come detto, gli edifici a nord del podio possono essere ricondotti a una rotazione rispetto al modulo regolare di 30x30 m del Plan Parcial. Suddetta rotazione configura due assi incrociati tra loro perpendicolarmente. Tra i due moduli passa anche la strada che scende dal lato orientale del campus verso la parte bassa di Tafira. Questa strada, oltre ad avere una funzione viaria, sembra essere parte della composizione di tali assi. Un concetto che diventa ancora più esplicito prestando attenzione al fatto che gli assi incrociati (sotto i quali potremmo anche far rientrare i percorsi della prima unità che tagliano il podio dividendolo in quattro quadranti) sono fondamentali nell'opera di Polesello non tanto per il tema geometrico dell'incrocio ma per il concetto di cardo e decumanus della centuriazione romana. Tali assi sono concepiti come le fondazioni del progetto, i limiti e i riferimenti; è il limitatio sul quale si può poi concretizzare il progetto.
Continuando nell'osservazione degli elementi del progetto si nota inoltre che la pianta completa del campus è caratterizzata da tre triangoli ben formati. Un primo triangolo si trova all'interno della prima unità, ed è descritto dal centro della piattaforma sud-est, dal centro della piattaforma sud-ovest e dal centro delle due piattaforme settentrionali. Il secondo triangolo è quello che costituisce la forma della seconda unità. L'ultimo triangolo è compreso tra il podio a sud, l'edificio lineare della seconda unità a nord, e il teatro a ovest, le tre aree. L'articolazione a triangoli proviene anch'essa dalla maglia quadrata sottesa dal Plan Parcial e il modo di comporli è ricorrente in Polesello. Ruotando i tre triangoli verso il loro centro, ovverosia facendoli ruotare di 60° da un'unica circonferenza, essi identificano un esagono con lato che misura il raggio della suddetta circonferenza, vale a dire una figura ottenuta accostando sei triangoli equilateri. Potremmo affermare che, in questo caso, le ragioni delle triangolazioni siano connesse al cerchio e alla geometria euclidea. Nel libro Architettura nei secoli curato da Giovanni Michelucci (Michelucci 1963, pp. 142-148) vengono descritte le costruzioni militari e portuali romane. Tra le piante riportate compaiono quella di una singola postazione militare esagonale e quella di un grande accampamento romano a forma esagonale. Questo riferimento è interessante perché il progetto in questione accoglie elementi di una cultura che non è quella greca, bensì romana. Gli elementi romani sarebbero, dunque, la centuriazione, gli assi incrociati, il teatro, l'esagono e, infine, la figura della nave.
Nave
Altro elemento di studio in relazione al progetto è la forma allungata in direzione est-ovest del secondo dei quadranti settentrionali, che viene pensato da Polesello come un grande volume a doppia altezza che accoglie la biblioteca dell'università. Gianugo spesso ricorre alla forma allungata simile a una nef francese. In questo caso si ha l'opportunità di leggere un altro tipo di riferimento alla nave. Nelle Canarie la presenza del mare è fondamentale, le isole sono state scoperte e colonizzate con il suo aiuto[13], e si sono sviluppate a partire da un rapporto che è andato a costruirsi nel tempo con le nuove rotte navali che attraversavano l'Atlantico[14]. Proprio la forma allungata della seconda piazza settentrionale, insieme ad altri elementi che si andranno a vedere, evoca la forma della nave o comunque un particolare rapporto con l'ambiente marittimo. Il tema della nave nell'opera di Polesello può avere diverse origini ed essere, al tempo stesso, legato alla forma geometrica della forma allungata. Anche in Le Corbusier si può trovare una fascinazione per questo oggetto e per le navi in generale, come è possibile osservare dal modo in cui esse sono presenti in alcune sue opere (Le Corbusier 1966, pp. 79-86). Il tema della nave è quindi ricorrente nel mondo di Le Corbusier e nelle figure che Gianugo ritiene essere d'interesse nella propria formazione.
A tal proposito risulta interessante riportare le parole di Semerani quando afferma che «Gianugo Polesello ama le figure delle barche pur non essendo un veneziano né tantomeno un marinaio. C'è sempre in Gianugo l'evocazione del porto (Livorno o Napoli, poco importa) e la chiglia della nave viene da lui trasformata in un dispositivo o un luogo conviviale. Può essere infatti che nell'opera di Gianugo, a forza di vedere i gusci delle barche e il loro apparecchiare, incominci una sorta di translatio navale» (Semerani 2000, p. 33). Le forme di Polesello possono essere viste come delle navi ma è più giusto evidenziare che esse sono un prodotto di più aspetti: forma antica, geometrie astratte, ecc. Bisogna comprendere che per il progetto canario la forma della nave ha particolare rilevanza proprio perché il rapporto con il mare è letterale. Non solo in senso visivo (l'edificio guarda al mare e viceversa), ma anche perché per raggiungere le Canarie è necessario utilizzare una barca, così come ha fatto Le Corbusier nel 1931[15]. Infine Gianugo amava dipingere sulle sue tele vele e barche e quindi questa fascinazione risale probabilmente anche a ciò.
Vetrocemento
Il materiale utilizzato da Polesello per fare le pareti e i parapetti degli edifici è stato il vetrocemento. È un materiale che in precedenti progetti aveva utilizzato, insieme ad altri architetti italiani, e che dava un certo tipo di carattere all'opera. Tale materiale era stato utilizzato in vari edifici e anche in progetti navali, ed era prodotto dalla società Bormioli di Parma, in una trentina di versioni[16]. A tal proposito Polesello afferma anche «Nel progetto generale l'interno e l'esterno dell'architettura sono caratterizzati principalmente dal vetro (in particolare vetrocemento) e dalla totale assenza di finestre, sostituite da varchi attraverso i quali passano i corridoi-ponti che collegano i quattro moduli nei diversi piani» (Zardini 1992, p.103).
[1] È un assetto urbano che si può ritrovare come tipo in diversi casi della pianificazione urbana spagnola, soprattutto riferito a modelli di città in America Latina.
[2] Il Seminario Diocesano è stato progettato dall'architetto spagnolo José Blasco Robles nel 1960, ed è stato costruito tra il 1960 e il 1970. Si tratta di un complesso educativo e religioso che ancora oggi ospita dei corsi universitari.
[3] Conversazione del 16 agosto 2022 a Las Palmas de Gran Canaria.
[4] La forma del paesaggio canario potrebbe evocare dei rimandi al paesaggio mediterraneo, tuttavia, proprio la vegetazione e il clima complessivo dell'arcipelago mostrano un carattere più atlantico, seppur con alcune caratteristiche subtropicali. A tal proposito, Las Palmas si trova ad un livello latitudinale più meridionale rispetto a diverse regioni del Mediterraneo.
[5] Conversazione del 15 agosto 2022 a Las Palmas de Gran Canaria con Juan Sebastián López García.
[6] Le tracce del talud-tablero risalgono al periodo Pre-Classico del centro del Messico intorno al 300-400 d.C., e hanno raggiunto il pieno sviluppo nell'area mesoamericana in corrispondenza dell'epoca tardo-classica, intorno all'800 d.C.
[7] Conversazione del 15 agosto 2022 a Las Palmas de Gran Canaria.
[8] Conversazione del 15 agosto 2022 a Las Palmas de Gran Canaria con Juan Sebastián López García e del 16 agosto 2022 a Las Palmas de Gran Canaria con Manuel Bote Delgado.
[9] Si veda: Mederos e Escribano 1998 e Dallatomasina e López García 2018. È stato invece ampliamente dibattuto il rapporto tra le Isole Canarie e il loro riferimento al mito delle Isole Fortunate e ad Atlante. Si vedano alcuni riferimenti: Santos Yanguas 1988 e López García 2010.
[10] Il graduale è un particolare tipo di libro liturgico.
[11] Il teatro costruito poggia sul terreno, una struttura artificiale muraria ricava la forma del teatro dal pendio, invece di scolpirlo all'interno della collina seguendone la morfologia naturale.
[12] Neri 2015 parla del riferimento all'acropoli nel progetto di Polesello.
[13] Dalla conoscenza dei venti che soffiano nell'Atlantico a nord e a sud dell'arcipelago canario, venne poi sviluppata la rotta per il Nuovo Continente.
[14] «Cristoforo Colombo effettuò il suo primo approdo alle Isole Canarie il 9 agosto 1492, sbarcando a La Gomera, situata nella provincia di Santa Cruz de Tenerife. Giunse a Gran Canaria, nella zona di Gando, l'11 agosto dello stesso anno, dove rimase per eseguire riparazioni alla Pinta. Salpò il 1° settembre e continuò fino a Colombo. Il 6 settembre partì da La Gomera e iniziò il Viaggio della Scoperta. Quello delle Canarie fu l'ultimo approdo europeo. In seguito, Colombo si fermò alle Canarie in ciascuno dei suoi altri tre viaggi durante i quali le isole acquisirono un nuovo significato all'interno della strategia del navigatore genovese, permettendogli di navigare a favore di vento ed evitando in questo modo di lottare, come aveva fatto nel primo viaggio, contro il Vento dell'Ovest che aveva reso difficile il suo percorso nella direzione dell'Europa» (Santiago Rodríguez 1955, p. 338).
[15] Nei primi anni Trenta Le Corbusier ebbe modo di viaggiare nei cieli con aeroplani commerciali, sperimentandoli come il mezzo per raggiungere l'Africa del Nord. Nel 1931 usò la strada marittima per visitare il Sud America e anche le Isole Canarie, così come Polesello e gli altri architetti che si trovavano ad operare nelle Isole probabilmente hanno fatto.
[16] Lo studio di progettazione di Gianugo usò il vetrocemento Bormioli nella tipologia trasparente per i parapetti e nella tipologia lucida-traslucida (Purasole) per i solai. Un uso analogo avvenne anche nel progetto di Villa Zen, disegnata da Carlo Scarpa nel 1964, in cui il materiale venne impiegato per la copertura dell'ala semicircolare.
AMISTADI L. (2019) – "Limes o lo spazio della fondazione". In: A. Morigi e C. Quintelli (a cura di), Fondare e ri-fondare. Parma, Reggio e Modena lungo la via Emilia romana. Il Poligrafo, Padova, pp. 277-283. ↩
CASH C.L. (2005) – Locating the place and meaning of the Talud-Tablero architectural style in the early classic Maya built environment. The University of Texas at Austin. ↩
CLEMENTE I. (2016) – Lucus. Intorno al significato nell'architettura di Gianugo Polesello. Aión, Firenze. ↩
DALLATOMASINA C. e LÓPEZ GARCÍA J.S. (2018) – ''Conjunto histórico de Barranco Hondo de Abajo (Gáldar): correlaciones europeas y puesta en valor. Una propuesta de museo abierto''. In: AA.VV., XX Simposio sobre Centros Históricos y Patrimonio Cultural de Canarias. Fundación CICOP, Arona, pp. 287-298.
LE CORBUSIER (1966) – Le Voyage d'Orient. Les Éditions Forces Vives, Parigi. ↩ ↩
LÓPEZ GARCÍA J. S. (2010) – Los centros históricos de Canarias. Anroat Ediciones, Las Palmas de Gran Canaria.
GUTIERREZ VIÑUELAS R. e LÓPEZ GARCÍA J.S. (2018) – Canarias y América. Puentes artísticos en el siglo XX. Cabildo de Gran Canaria, Las Palmas de Gran Canaria. ↩
MEDEROS A. e ESCRIBANO G. (1998) – "Posibles deportaciones romanas de norteafricanos hacia Canarias". Revista de Arqueología, n. 19 (206), pp. 42-48.
MICHELUCCI G. (a cura di) (1963) – Architettura nei secoli. Mondadori, Milano. ↩
NERI R. (2015) – "Una acropoli moderna". Architettura Civile, n.15, pp. 36-40.
PALERM SALAZAR J.M. (2019) – Re-Encantar Bancales. Canarias ayer y hoy (siglos XIX, XX y XXI). Rincones del Atlántico, La Orotava, Tenerife. ↩
POLESELLO G., BOTE DELGADO M., GARCÍA MACIÁ B., PALERM SALAZAR J. M., RAMÍREZ GUEDES J. (1989) – "Edificio Departamental de Informática y Matemáticas". In: J. Casariego Ramírez e G. Macías Castaneda (a cura di), Universidad y ciudad: la construcción del espacio universitario. Caja Insular de Ahorros de Canarias, Las Palmas de Gran Canaria. ↩ ↩ ↩ ↩ ↩
POLESELLO G. (1990) – "Campus universitario a Las Palmas, Canarie. 1988-89". Zodiac, n. 3, pp. 202-223. ↩
POLESELLO G. (2000) – "Università a Las Palmas". In: R. Neri e P. Viganò (a cura di), La Modernità del classico, Marsilio, Venezia, pp. 74-80. ↩ ↩ ↩
RAMÍREZ DOMEC A. (2022) – Iter vitae. Intervención en el Campus de Tafira. Tesi di laurea. Escuela de Arquitectura, Universidad de Las Palmas de Gran Canaria.
SANTIAGO RODRÍGUEZ M. (1955) – "Colón en Canarias". Anuario de Estudios Atlánticos, n.1, pp. 337-396.
SANTOS YANGUAS N. V. (1988) – "El mito de las Islas Afortunadas en la Antigüedad". Memorias de historia antigua, n. 9, pp. 165-175.
SEMERANI L. (2000) – L'altro moderno. Allemandi, Torino e Londra. ↩ ↩
ZARDINI M. (1992) – Gianugo Polesello. Architetture 1960-1992. Electa, Milano. ↩