































Introduction
A group of colleagues travels to Finland to explore, firsthand, the narrative dimension of architecture through direct engagement with places, spaces, forms, colors, memories, light, and even scents. This “Grand Tour” through lakes and forests (Frampton 1998) reveals a landscape where the overwhelming presence of nature allows only a few architectural interventions to emerge – distinct episodes that stand out in the dense Nordic environment as authentic expressions of figurative intent, refined craftsmanship, and linguistic experimentation, rarely achieved in architecture (Colin St John 1979).
This landscape has long inspired narratives in which nature assumes a mythical and magical role. Forests, for instance, are often portrayed as the dwelling places of spirits and mystical beings – such as the Tapio, guardians of the trees, or the Hiisi, malevolent entities inhabiting remote areas. In Finnish mythology, natural elements are not merely physical phenomena but living entities endowed with their own agency.
The journey becomes a retrospective rediscovery of “Nordic poetics,” shaped by the assimilation of key traits of Mediterranean plasticity and immersed in the wild vague of the Finnish landscape. This profound connection remains perceptible in a culture where nature continues to be revered, generating unexpected and unique outcomes. These influences are evident in the creative evolution of Alvar Aalto, who began to intertwine Nordic sensibilities – particularly in artisanal construction techniques – with a deep-rooted Mediterranean ethos. His mastery in balancing material contrasts, chromatic harmonies, and technical precision transforms ideas into form – concepts shaped and ordered by the mind – while matter suggests mass: a tangible, plastic thought that inhabits space, giving rise to figures with their own physical consistency and autonomous presence (Norberg-Schulz 1998).
Paimio Tuberculosis Sanatorium (1928–33)
The tour begins with the Paimio Sanatorium, a clear and composed structure set atop a broad expanse of glacial hills, densely covered with birch, pine, and spruce forests. Works such as this are striking in redefining the conventional functional and behavioural relationship between users and architectural space (Woodman 2016). This is particularly evident in the use of “pure chromaticism,” articulated compositions, emblematic forms, and the patient ordering of elements that elevate form toward ideal ambitions – condensing space and matter in pursuit of a representational character that aspires to monumentality and compositional balance. These are hallmarks of many of Aalto’s works.
Aalto’s cultural background – shaped by formative experiences such as his time in Arvid Bjerke’s studio in Sweden (1921–22), his exposure to the Wagner School in Vienna, his honeymoon travels through Italy and Greece in 1924, and his 1928 visit to the Netherlands, particularly to Johannes Duiker’s Zonnestraal Sanatorium in Hilversum (Vanden Heuvel 1978) – fueled his evolving engagement with the emerging poetics of modern European architecture. These journeys, these cultural explorations – these “tours” – were instrumental in shaping his architectural language (Tentori 2002).
The building consists of a main body articulated into three distinct volumes, each rotated at different angles. Auxiliary structures, added in 1933 – including housing for medical and paramedical staff and garages – are set apart from the main complex. The principal wing, a slender six-story linear block, houses patient rooms for approximately 300 individuals. The central volume accommodates communal spaces, while the smaller, lower wing contains general services such as the kitchen, dining hall, and technical facilities. The design is governed by the orientation of the main wing, which prioritised isolation, solar exposure, and natural ventilation. Patient rooms face southeast, toward the forest, while service areas are located on the inner side. The ends of the main wing feature terraces and solariums on all six levels, supported by a refined structural system of tapered columns (AA.VV. 1935).
The central volume, located at the entrance and flanked by the patient and service wings, opens into a lobby with vertical circulation elements – a staircase and elevator block. Here, Aalto’s approach reveals a profound empathy for the patient, manifesting in both technical and artistic solutions: an advanced heating and ventilation system, careful attention to natural and artificial lighting, and custom-designed furnishings (beds, lamps, chairs, wardrobes). Artistically, the interior colour scheme, formal clarity, and figurative sensibility reflect a synthesis of classical solemnity and rationalist economy – an architectural poetics emerging organically from the Finnish forest landscape.
All patient rooms and rest areas are located away from zones of activity and oriented toward the forest and gardens. Walkways, reserved for patient use, are visible from the upper floors. Restrooms, situated at the eastern end of the complex, are directly connected to patient rooms, while the terraces allow for rotational use by different patient groups.
The basic unit is the patient room. The ceilings are painted in darker tones than the walls. Heating is provided by a radiant surface embedded in the ceiling, designed to direct warmth toward the patient’s lower limbs while minimizing exposure to the head. The rest of the room receives only indirect, gentle radiation. Incoming air is naturally preheated and flows diagonally through specially designed window openings, avoiding direct drafts toward the patient.
Villa Mairea (1938–39)
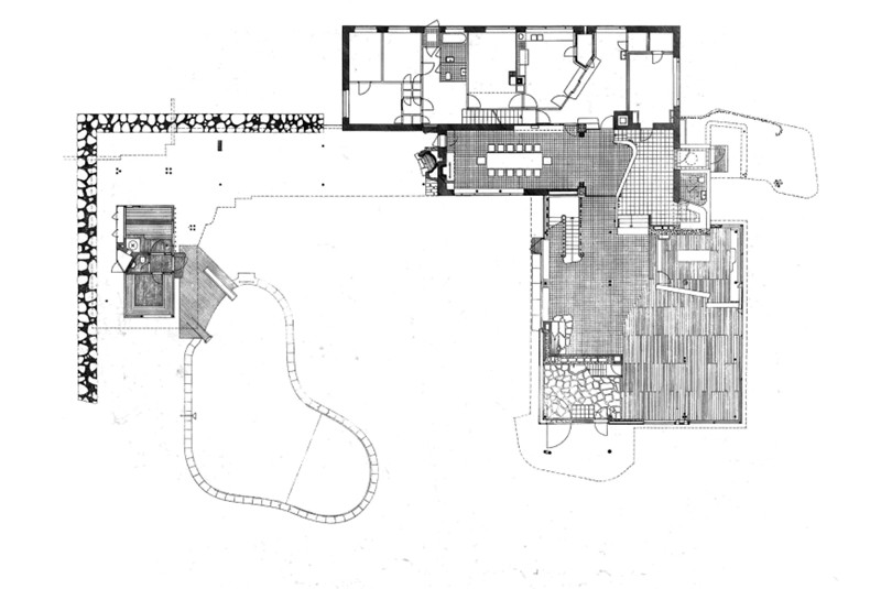
The second stop on our tour is Villa Mairea, a pivotal project in Aalto’s career following major works such as the Viipuri Library (1931–35), the Reval Museum project (1934), the Finnish Pavilion at the 1937 Paris Exposition, and the Sunila Pulp Mill (1936–39). Commissioned by the young industrialist Harry Gullichsen and his wife Maire – after whom the villa is named – this residence stands as one of the clearest examples of Aalto’s ability to reconcile modernism with Nordic tradition at the domestic scale.
The spatial organization of the house reflects the artistic and cultural vision of the Gullichsen family, while also embodying their desire for a dwelling that transcends mere functionality to become a place of beauty and aesthetic experience[1]. What remains striking is the conceptual integration between architectural artifice and the natural environment – an iconic element that itself becomes a work of art (Greco 2000).
The villa is structured across three levels: the basement houses technical systems and storage; the ground floor, open to the inner garden, contains the living areas; and the upper floor is reserved for private quarters, including the master suite, children’s rooms, and a separate guest area. The layout is defined by the intersection of two linear volumes forming a right angle, enclosing a courtyard that establishes a strong relationship with the surrounding natural elements – particularly the adjacent forest, mediated by the garden, which serves as the privileged outlook for the main rooms.
The plan extends at the rear through an open colonnade leading to the sauna, with a lawn and swimming pool at its centre. Functions are clearly distributed: the ground floor is dedicated to communal and public spaces, while the upper floor remains strictly private.
The entrance, marked by a curved wooden canopy supported by braces and a pillar clad in vertical wooden slats, opens into a small hall set at a lower level than the main rooms. From here, two short staircases of four steps each lead to the dining room and living area. The dining room is aligned axially with the table, though this axis is softened by an asymmetrical wooden screen resting against a curved wall, subtly defining the hall as an informal antechamber between the gallery-like living room and the dining space. The focal point of the living room is a white-plastered fireplace set in a corner, around which the entire space is organised.
The living area also includes a library and opens onto the curvilinear outdoor pool, accessible via a portico constructed partly in wood and partly in steel, with a green roof covered in turf. The emphasis on shared spaces creates a fluid transition between the interior and exterior, reinforcing the perception of the house as a threshold between built form and natural landscape.
Villa Mairea exemplifies a unique synthesis of modernist lines with references to Finnish tradition and organic architecture. While wood – a quintessential Finnish material – is prominently featured, the structure also incorporates modern materials such as concrete and glass. The design is characterized by open, flowing spaces that reflect Aalto’s functionalist approach while celebrating the natural beauty of the surrounding landscape. This is not merely a poetic gesture, but a reaffirmation of the deep connection between architecture and nature.
One notable innovation is the use of ribbon windows, which maintain a continuous visual connection between interior and exterior. Aalto’s treatment of light and shadow, as well as his use of colour, underscores his intent to create a harmonious and stimulating environment. The villa is set within a large garden designed by Aalto himself, which serves not only as an outdoor space but as an extension of the villa’s architectural philosophy. Villa Mairea thus represents a perfect synthesis of modernism and nature – an example of how architecture can respond to human needs while honouring environmental and cultural traditions (Mosso 1976).
Muuratsalo Experimental House
The third stop on our tour is the Muuratsalo Summer House, where more than anywhere else, Aalto sought to reconnect his spirit with the legends of the forest, lakes, and icy islands – the archetypal Finnish landscape that has long inspired national folklore. For Aalto, this setting was not only a backdrop for fairy tales but the natural location for his own dwelling. Finnish mythology imbues the landscape with a sense of enchantment, mystery, and symbolic resonance, where spirits and legends are reinterpreted through a figurative language that merges local folklore with international modernism.
The complex comprises the main residential block, an adjoining guest wing, a woodshed, and a separate smoke sauna located near the lakeshore. The primary structure, L-shaped and inscribed within a square footprint, is divided into two zones: one for bedrooms, and the other for living, dining, and working spaces. Aalto employed a variety of forms and proportions throughout the buildings. The main block is nestled against a rocky outcrop, offering expansive views of the lake. Its topographical positioning and relationship with the surrounding landscape were carefully considered. Approaching from the lake – the traditional point of arrival – the house appears as a slender white volume atop the rock. From the forest side, however, it reads as a cluster of small, white-painted wooden blocks.
The architectural and functional centrepiece is the courtyard, located along the diagonal axis between the bedroom and living wings, forming a rigorously geometric enclosure. Aalto experimented with various brick types and ceramic tile combinations on the courtyard façades and patio surfaces, creating a richly textured and visually dynamic environment.
In the 1953 issue (n. 9-10) of «Arkkitehti» (Finnish Architectural Review), Aalto described the house as both a protected architectural studio and a site for material experimentation, where proximity to nature could inspire both form and construction (Aalto 1953).
The house thus served as a laboratory for testing shapes, textures, structural properties, dimensions, and assembly techniques – open joints, staggered surfaces, contiguous planes, and more.
What stands out is the natural arrangement of a wide range of materials into a heterogeneous collage across the vertical surfaces – approximately fifty distinct brick or tile fields – resulting in a material multiplicity unified by a coherent architectural figure. The chromatic variations generate virtual spatial figures within the courtyard, expanding its perceived dimensions and animating the vertical surfaces with richness and depth.
A further distinctive feature of this abstract display of constructed forms is their relationship with both the enclosing space and the spatial effects generated by geometrically framed, cantilevered, grooved, or perforated fields. This creates a dual spatiality: one defined by the dynamic interplay between the stark, white, blind surfaces and the surrounding natural environment; the other, more intimate and mysterious, emerges from the internal relationships among masses, warm tones, and harmonious proportions – figures seemingly conceived in sincere dialogue with the spirit of the place[2].
At the heart of the house is the open fireplace in the centre of the courtyard. The spatial and visual sequence extends from the living room, through the courtyard, and out toward the lake. Aalto’s experimentation also extended to the precise detailing of the suspended and ventilated foundations – resting on logs to adapt to the rocky terrain – used for both the guest wing and the woodshed. In designing the smoke sauna along the lakeshore, Aalto employed the natural curvature of timber logs to shape the sloping roof. Muuratsalo was a place of personal significance for Aalto – a retreat where he could relax, paint, and host friends in a setting deeply immersed in nature.
Säynätsalo Town Hall (1949–52)
Located not far from Jyväskylä, the fourth stop of the tour is the Säynätsalo Town Hall, built between 1949 and 1952. The site is a small island in the inland sea of Lake Päijänne. The town itself is relatively recent – planned in 1945 and home to just over 3,000 inhabitants. It originated from a project initiated in 1942, when Aalto was invited by Hilmer Brommels, the local director of the Enso-Gutzeit company, to design a settlement for factory workers. The new development was planned in 1945, followed shortly by the central market square, the town hall, and commercial buildings.
In 1950, Aalto envisioned a cultural centre for the settlement, which was never realized. Only the village centre was built according to his design, following a competition he won in 1949 (AA.VV. 1954). The architectural layout is organized around a nearly square courtyard – a settlement motif similar to that of the nearby Muuratsalo house. This choice reflects an idealization of pure geometric form, which, as Peter Eisenman noted, is eroded at the edges by the site’s natural contours, revealing the formal essence at the core of Aalto’s proposal (Eisenman 2009)[3].
At the heart of this exemplary composition lies a central theme of Aalto’s poetics: the conceptualization of architecture as an expression of elemental relationships between form, colour, and material (Menin 2001). The spatial condition is defined by elementary structures – stereometric masses that expand into the Nordic landscape, assuming an “acropolitan” disposition through the central void that celebrates spatial introversion[4].
The program includes municipal offices, a large council chamber, a public library, and several apartments. The ground floor houses commercial spaces, designed to accommodate future expansions of public and civic functions. The elevated courtyard was formed using soil excavated during foundation work, and placed at the centre to define the building’s representative character and to separate public functions from the commercial spaces below, along the street level.
The council chamber is the architectural and symbolic core of the composition – a nearly cubic volume, with equal dimensions in plan and height. A sophisticated system of triangular supports sustains both the primary and secondary structures. Beyond its technical achievements, the building encapsulates many of the themes Aalto explored throughout his career.
A key aspect is the free arrangement of functions within a typologically defined structure. Although the competition brief suggested a single three-story block, Aalto distributed the functions across a composition of architectural masses organized around the central courtyard, assigning each part a specific role: a separate block to the north (later modified) for a sauna and housing; municipal offices to the north and east; apartments to the west; and the library to the south, above the ground-floor shops.
A second aspect concerns the building’s representational character. As early as 1926, Aalto wrote:
The city on the hill […] is the purest, most characteristic, and natural form of urban design. Its beauty is above all natural, as it reveals its qualities when viewed from the human eye level, that is, from the ground (Schildt 1986, p. 13).
This idea is evident in the raised courtyard and in the varied spatial perceptions: from the centre, the buildings appear almost domestic in scale, with the low-pitched roofs emphasizing the inward slope and maximizing sunlight penetration.
A third aspect relates to the symbolic and tectonic dimension of this modest building, elevated to represent the entire community. The architectural narrative is constructed through figurative devices and constructional strategies centred on the council chamber. Its projecting volume not only exceeds the sectional limits of the courtyard enclosure but also extends eastward to accommodate a staircase that ascends counterclockwise, with staggered landings offering moments of pause and culminating in a panoramic gallery at the rear. This gallery wraps around the chamber in a subsidiary space lit by a continuous window. After the first turn, one enters the chamber through a wide sliding door. Three steps lead to another level, where a second sliding door opens onto a small gallery for observers, forming the third side of the chamber’s enclosure, oriented westward toward the courtyard.
Jyväskylä University Campus
Not so far from Muuratsalo, and following his commission for the Otaniemi campus, Aalto won the competition for the Pedagogical Institute – now the University of Jyväskylä. This project emerged from a strong local commitment to educational sciences, a field well-known to Aalto, who was born in Jyväskylä. The city had also hosted the first Finnish-language school, and Aalto affectionately referred to it as the potential “Athens of Finland” (Paavilainen 1979).
The motto Aalto chose for the competition, Urbs, clearly reflected his urban design approach. Central to the campus is the “Festival Hall”, a true civic theatre conceived as a space open both to the city and to the university’s ceremonial functions (Holma 2016).
As in Otaniemi and other urban-scale projects, Aalto drew inspiration from the organization of the Greek polis – guided by principles of functionality, yet responsive to contextual stimuli such as topography. The layout adapts to the terrain while asserting a strong figurative identity, with each function – from “temple” to “agora,” from “theatre” to “private house” – symbolically reinforcing the values and identity of the community (Hipeli 2009).
The campus includes residences for faculty and students, a restaurant, a gymnasium, a swimming pool, a pedagogical institute with classrooms and offices, a large library, and a main building with an auditorium. The auditorium – comprising two large halls separated by a movable soundproof wall – can be combined into a single space for up to 950 people. It serves both as a venue for university ceremonies and as a concert hall for the city. The fan-shaped seating rises above a shared cloakroom and a spacious foyer, which opens to the city and adjacent forest through a continuous glass façade. Once again, Aalto explores the theme of expanded space, using large transparent spans and a freely arranged colonnade to merge interior and exterior environments (Purini 2002, pp. 33-36).
Despite the variety of architectural solutions tailored to the campus’s diverse functions, the significance of Jyväskylä within Aalto’s body of work lies in the design of the main building. Here, he refined themes that would become central to his architectural poetics, supported by new construction techniques. For instance, the building is divided into two distinct sections: to the north, a rectilinear block housing classrooms, seminar rooms, and laboratories; to the south, the main auditorium. These converge along an internal street, forming a kind of modern stoa.
This composition constructs a metaphorical urban landscape within the building itself – a sequence of panoramic views, foyer spaces, a covered public square, and a “street” with an oversized ceremonial stairway rising behind a dramatic brick cliff. The project’s evocative power lies in its ability to fulfil the representational aspirations of space through elemental architectural gestures.
Although the campus was conceived as a unified master plan, each component is treated independently, with its own architectural logic and poetic rationale. Materials and forms vary: exposed or plastered brickwork; columns ranging from organic, plant-like struts to white pilotis or clad structural elements; openings treated as rectangular voids, continuous screens, or ribbon windows; roofs designed in modernist fashion – flat, single-pitched with skylights, or clad in copper, evoking romantic Nordic traditions.
Aalto appears to simulate a settlement layered over time, with material and geometric variations – sometimes even stylistic ones – adapted to the site’s topography. These subtle shifts and adjustments create a series of perspectives and spatial nuances that recall both medieval urban fabric and a carefully orchestrated ensemble responsive to contextual cues.
Otaniemi University Campus
The final stop of the tour is in Helsinki: the Otaniemi University campus. The origins of this project date back to the years following the Second World War, when the Finnish government decided to relocate the Technical University of Helsinki to a peninsula west of the city, near the newly planned “forest city” of Tapiola. The 1949 competition was won by Alvar Aalto – one of the last projects he undertook with his wife Aino – while he was still affiliated with MIT, a commitment that ultimately prevented his return to teaching in the United States.
In a heartfelt letter to Dean William Wurster, Aalto expressed his deep attachment to the commission and its civic importance:
The plan comprises approximately seventy buildings, different departments, laboratories, dormitories, etc. on a free site of hundreds of acres, the most beautiful spot near Helsinki. You know by yourself this means work, work and work [...] I could of course for MIT give up one or two of my bigger works but I can of course in no case abstain from building the new Technical University of my own country, which happens once in a millennium. Things like that are labor sacrum[5].
The project underwent several transformations between the competition phase and its realization. The original architectural layout was based on a hierarchical arrangement of volumetric blocks organized around a central space – the highest point of the site – where a large agora was presided over by an auditorium, conceived as a classical theater opening onto the open space. This scheme, reminiscent of Aalto’s earlier projects in Imatra and Säynätsalo, evoked an acropolis-like composition, once intended to include a “ruined” colonnade – an estranging presence that was ultimately omitted due to the difficulty of sourcing authentic columns from Italy.
The final version, built in phases starting in 1952, introduced modifications such as the reduction of the central plaza and the stepped contraction of the lateral wings, which softened the acropolis effect. Nevertheless, the project retained allusions to classical urban devices: the sequential pediments of the gymnasium, the adoption of the cavea-type auditorium, the patio as a distributive device for the classroom blocks, the use of topographic variation to enhance the architectural masses, and the stereometric articulation of volumes – all referencing Mediterranean architectural culture.
The design of the campus belongs to a figurative repertoire that Aalto had patiently developed throughout his career. Any perceived redundancies are, in fact, the result of a persistent and coherent inquiry into the nature of space for academic communities. Here, collective space is shaped by a civic sense of monumentality – one that avoids rhetorical excess or linguistic verbosity.
This project reveals a kind of sensory multiplication of masses and forms across the built ensemble. It is a remarkable achievement, the outcome of a symbolic, plastic, material, and even alchemical pursuit – a dialogue between nature and the architect, who transforms and historicises it through the magical secret of architecture.
Aalto’s deep roots in Mediterranean Europeanism – shaped by his formative travels to Italy in 1924 – are evident[6]. From these experiences, he developed a dual sensitivity: on one hand, a classical rigour, exemplified by recurring themes such as the cavea; on the other, an attentiveness to vernacular dwelling, to the site as a natural foundation for architecture, and to architecture as topography. This project thus becomes a kind of inverted Grand Tour – one in which the Mediterranean tradition is rediscovered and reinterpreted in the Baltic landscape.
[1] One of the artists exhibited at Villa Mairea is Akseli Gallen-Kallela, a Finnish painter known for his works inspired by Finnish mythology and the epic poem Kalevala. Gallen-Kallela is considered one of the greatest Finnish artists and played a key role in the Finnish nationalist movement. His works are characterised by a strong sense of narrative and a vibrant use of color. Among his most famous works are The Swan of Tuonela and The Defender of the Sampo, both inspired by the Kalevala. His art reflects a deep connection with nature and Finnish culture, making him a perfect artist to be exhibited in a place like Villa Mairea, which celebrates Nordic art and culture.
[2] See also AA.VV. 1938, pp. 20-21.
[3] The book is Peter Eisenman’s 1963 PhD thesis at Trinity College, Cambridge under the guidance of Sir Leslie Martin, which aims to demonstrate that form is the basis of all modern architecture, regardless of style. The author builds on and interprets Le Corbusier’s discussion of the concept of form in Quatre Compositions and empirically tests the new theory on works by Le Corbusier, Frank Lloyd Wright, Alvar Aalto and Giuseppe Terragni. The aim is to provide a basis for clarification of modern architectural conceptual thought.
[4] «[...] I used the enclosed courtyard as the main motif because, in some mysterious way, it awakens the social instinct. In government and municipal buildings, the courtyard has preserved its original meaning, which, from the times of ancient Crete, Greece and Rome, through the Middle Ages and the Renaissance, has come down to us. Buildings with central courtyards also have shorter corridors in relation to the size of the halls. In administrative buildings, central corridors or dark passageways cannot, and should not, be used» (Schildt 2000, p. 81).
[5] Aalto, 1949. Letter to the MIT Board of Directors (Schildt 1991, p. 128).
[6] See in this regard Mangone and Scalvini 1998; see also the well-known thesis by Bruno Zevi on Aalto’s four seasons on the occasion of the centenary of his birth (Zevi 1998, pp. 254-55).
AALTO A. (1953) – “Jyväskylän yliopiston oppilasasuntola”. Arkkitehti, 5-6. ↩
AA.VV. (1935) – Paimio Sanatorium. Museum of Finnish Architecture, Helsinki. ↩
AA.VV. (1954) – “Opiskelija-asuntola Jyväskylä Korkeakoulukeskittymään”. Arkkitehti, 10. ↩
COLIN ST JOHN W. (1979) – “Tectonics of Team 10”. Progressive Architecture, vol. 60, 10 (October), pp. 90-95. ↩
EISENMAN P. (2009) – Written into the Void: Selected Writings 1990-2004. Yale University Press, New Haven and London. ↩
FRAMPTON K. (1998) – “Apropos Aalto”. Domus, 810 (December), pp. 4-9. ↩
GRECO A. (2000) – “Dalla memoria alla Mairea. Alvar Aalto, un romanzo di formazione [From memory to Mairea. Alvar Aalto, a novel of formation]”. Controspazio, vol. 31, 1 (January-February), pp. 76-77. ↩
HIPELI M. (2009) – Alvar Aalto Architect. Jyväskylä University 1951-71. Alvar Aalto Foundation, Helsinki. ↩
HOLMA M. (2016) – Jyväskylän yliopistokampus. The Jyväskylä University Campus 1950-58, 1964-65, 1969-71. Alvar Aalto-museo, Jyväskylä. ↩
MANGONE F. and SCALVINI M.L. (1998) – Alvar Aalto. Laterza, Rome-Bari. ↩
MENIN S. (2001) – “Fragments from the forest: Aalto’s requisitioning of forest place and matter”. Journal of Architecture, 3 (Autumn), pp. 279-305. ↩
MOSSO L. (1976) – “Alvar Aalto, internationalism and tradition”. Casabella, 415-416 (July-August), pp. 30-39. ↩
NORBERG-SCHULZ C. (1998) – “Lo spirito nordico [The Nordic spirit]”. Domus, 810 (December), pp. 4-120. ↩
PAAVILAINEN S. (1979) – “Classicism of the 1920’s and the classical tradition in Finland”. In: E. Grew (ed.), Abacus Museum of Finnish Architecture Yearbook. Museum of Finnish Architecture, Helsinki. ↩
PURINI F. (2002) – “Una Dualità”. In: P. Lovero (ed.), Alvar Aalto 1898-1976. Quaderni Anfione Zeto. Il Poligrafo, Padua. ↩
SCHILDT G. (1986) – Alvar Aalto: The Decisive Years. Rizzoli, New York. ↩
SCHILDT G. (1991) – Alvar Aalto. The Mature Years. Rizzoli, New York. ↩
SCHILDT G. (2000) – Alvar Aalto. Capolavori. Rizzoli, Milan. ↩
TENTORI F. (2002) – “Sentieri Tortuosi. Riflessioni su Alvar Aalto”. In: P. Lovero (ed.), Alvar Aalto 1898-1976. Quaderni Anfione Zeto. Il Poligrafo, Padua. ↩
VANDEN HEUVEL W.J. (1978) – “Alvar Aalto’s sanatorium and the influence of architect Jan Duiker”. Polytechnisch Tijdschrift, vol. 33, 12 (December), pp. 755-759. ↩
ZEVI B. (1998) – “Alvar Aalto senza retorica”. L’Architettura, 511 (May), pp. 254-55. ↩
WOODMAN E. (2016) – “Revisiting Aalto’s Paimio; Original architect: Alvar Aalto, 1932”. Architectural Review, vol. 240, 1436 (November), pp. 111-118. ↩