Fig.
1 - Pianta di Palermo di Gaetano Lossieux, 1818 (in basso a destra
l’Arsenale).
Fig.
2 - Veduta del Nuovo Molo e del porto di Palermo, 1686; al centro si
vede l'Arsenale (da C. Castilla, Teatro geografico antiguo y moderno
del Reyno de Sicilia, ms., Palermo 1 maggio 1686); da Ajroldi C.,
Cottone D. (2016), Il nuovo Museo, cit.
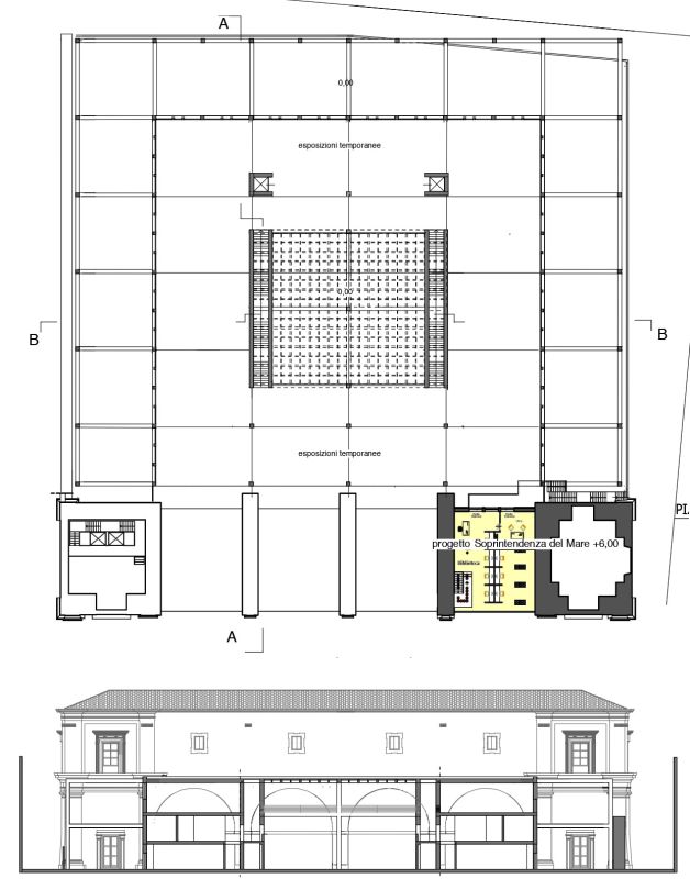
Fig.
3 - L’Arsenale: veduta, pianta e prospetto principale, pianta
dello stato originario
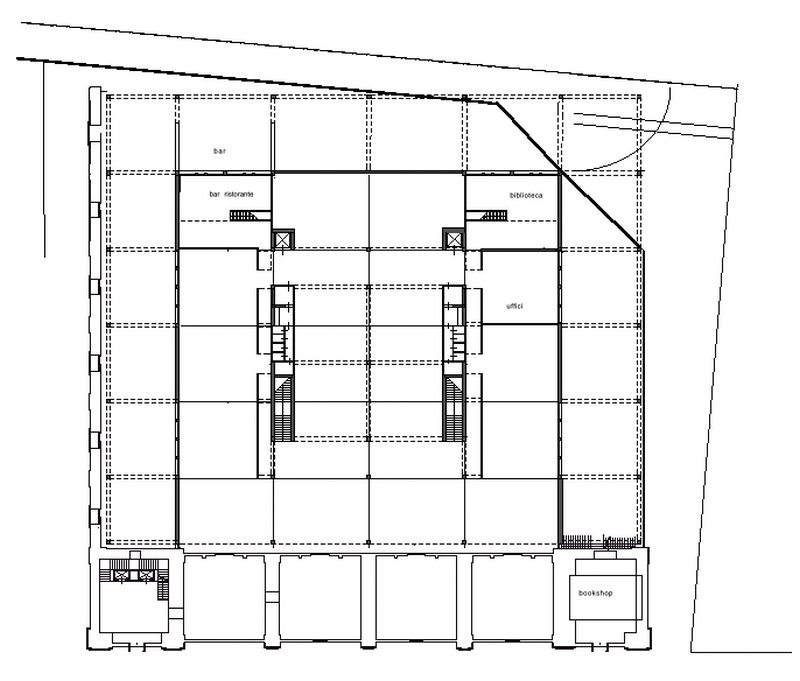
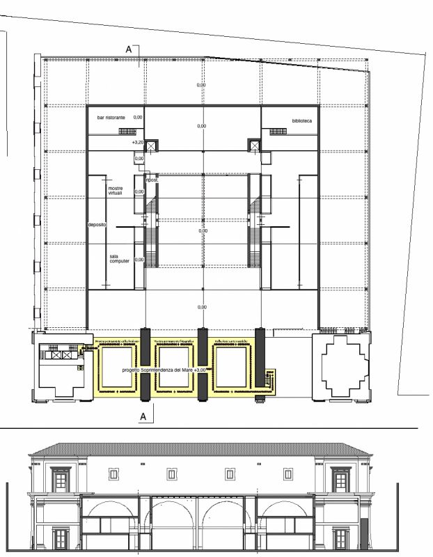
Fig.
4 - Cesare Ajroldi, Museo del Mare, Palermo, 2016. Piante a quota 0 (a
sinistra) e +3.84 (a destra) e sezione

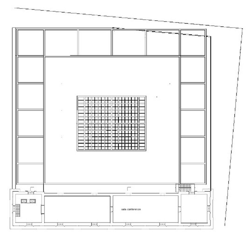
Fig.
5 - Cesare Ajroldi, Museo del Mare, Palermo 2016. Piante a quota +7.68
(a sinistra) e +12.00 (a destra) e sezione

Fig.
6 - Cesare Ajroldi, Museo del Mare, Palermo, 2016. Prospetti
Fig.
7 - Cesare Ajroldi, Museo del Mare, Palermo, 2016. Sezione prospettica
(rendering di Giulia Montaina).
Fig.
8 - Cesare Ajroldi, Museo del Mare, Palermo, 2016. Vista prospettica
(rendering di Giulia Montaina).
Fig.
9 - Cesare Ajroldi, Museo del Mare, Palermo, 2016. Vista prospettica
(rendering di Giulia Montaina).
Fig.
10 - Cesare Ajroldi, Museo del Mare, Palermo, 2016. Vista dell'interno
(rendering di Giulia Montaina).