Imparare, costruire, immaginare. Le scuole di Hassan Fathy

Viola Bertini




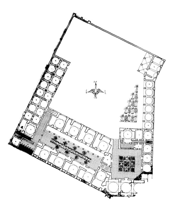
Lungo la strada di Saqqara che dal Cairo conduce al sito archeologico di Giza, non lontano dalle Piramidi, sorge il villaggio di Ḥarrāniyyah. Qui, tra le case addensatesi nel tempo, un recinto poligonale delimita lo spazio nel quale alcuni edifici compongono il Ramses Wissa Wassef Art Center. L’ensemble architettonico è opera dell’architetto egiziano Ramses Wissa Wassef (1911-1974), suo ideatore e progettista. Formatosi all’École des Beaux-Arts di Parigi, a partire dal 1936 egli insegna arte e storia dell’architettura all’Accademia di Belle Arti del Cairo, dove conosce Hassan Fathy, del quale diviene collega e amico. Entrambi operano nel tentativo di costruire un linguaggio che sia l’appropriata espressione di una rinata identità nazionale[1].

Wissa Wassef è cognato di Habib Gorgui[2] e ne condivide la teoria pedagogica secondo cui in ciascun individuo è insito un potenziale creativo che, se opportunamente incoraggiato a partire dalla giovanissima età, può condurre a eccellenti risultati in campo artistico. Questo senza alcun vincolo formale e, soprattutto, prescindendo dai modelli dell’insegnamento accademico. Scrive in proposito Wissa Wassef: «Avevo questa vaga convinzione che ogni essere umano nascesse come artista, ma che questo suo dono potesse essere portato alla luce solo incoraggiando la creazione artistica attraverso la pratica dell’artigianato già a partire dalla prima infanzia» (Wassef 1972). È motivato da tali idee che, nel 1951, fonda il Ramses Wissa Wassef Art Centre, con l’obiettivo di fornire ai bambini dei villaggi vicini le conoscenze preliminari legate alla tecnica della tessitura, affinché questi, con tale mezzo e senza condizionamenti esterni, possano dare vita a opere d’arte.

Nel tempo, alla scuola di tessitura si sono affiancate altre attività, quali la produzione di ceramiche e batik e un piccolo museo, anch’esso progettato da Wissa Wassef e destinato a ospitare le sculture prodotte dagli allievi di Gorgui. L’Art Center di Ḥarrāniyyah è concepito come un villaggio, del quale ricalca la struttura. L’insediamento si costruisce nel tempo per addizione di parti che rispondono, di volta in volta, alle esigenze espresse dal momento[3]. Le architetture sono realizzate impiegando la terra cruda come principale materiale da costruzione. Coperte con tetti piani praticabili, cupole e volte catenarie, esse si configurano come sperimentazioni nell’uso di forme e materiali e nascono dal sapiente montaggio di elementi architettonici derivati dalla tradizione. Molti tra gli spazi espositivi, le case e i laboratori che compongono il villaggio sono direttamente costruiti dagli allievi della scuola sotto la supervisione dell’architetto[4]. L’architettura diviene così essa stessa il risultato di un processo di produzione artigianale nel quale - scrive Wissa Wassef (Picone 2009) - bellezza e utilità, forma e materia, opera e funzione, uomo e creatività sono indissolubilmente legati.

Nel complesso, l’Art Center di Ḥarrāniyyah sintetizza non solo il pensiero di Wissa Wassef, ma ben esprime un contesto culturale, lo stesso in cui opera Fathy, nel quale si attribuisce alla trasmissione del sapere, anche nel campo delle arti applicate, un valore fondante nel processo di reinvenzione dell’identità nazionale. Fathy cita l’esperimento condotto da Wissa Wassef e Gorgui nel suo libro Costruire con la gente. Storia di un villaggio d’Egitto: Gourna (2008) e per il villaggio di Ḥarrāniyyah realizza egli stesso un progetto urbano, che tuttavia resterà solo su carta.

Quanto compiuto da Wissa Wassef a Ḥarrāniyyah e i metodi pedagogici promossi da Gorgui riecheggiano nell’opera di Fathy. I villaggi che egli realizza mettono infatti in luce il ruolo pregnante attribuito all’istruzione, sia scolastica che professionale, in tali contesti.

In primo luogo, sempre presenti nei villaggi di Fathy sono una o più scuole che, dimensionate in base alla grandezza dei villaggi[5], rappresentano un’istituzione ritenuta necessaria per la nascita e per lo sviluppo di queste piccole città di fondazione. Scrive Fathy:

[l’architetto] deve affrontare la progettazione di una scuola con lo stesso stato d’animo con cui disegna una chiesa o una moschea, poiché si tratta dello stesso genere di edificio. In una scuola deve poter crescere l’animo del bambino e il fabbricato deve stimolarla a sbocciare […]. In poche linee fatali tracciate al tavolo da disegno, l’architetto fissa i limiti dell’immaginazione, la pace dello spirito, le qualità umane delle future generazioni.(Fathy 2008, p. 127) 

Significativo è l’esempio di New Gourna (1945) dove l’architetto realizza due scuole, una maschile e una femminile, non presenti nell’antico villaggio. La scelta di introdurre tale funzione in un villaggio rurale destinato a ospitare circa 900 abitanti è dunque il risultato di un’invenzione. Le scuole di New Gourna sono tra i primi progetti in cui Fathy si confronta con il tema dell’edificio scolastico. Qui egli sviluppa una serie di ragionamenti che saranno portati a compimento alcuni anni più tardi nel progetto della scuola di Fares (1956). Sia nelle scuole di New Gourna, che in alcuni disegni del 1949 per una scuola mai costruita[6] ricorre una pianta a corte aperta su un lato e strutturata a partire dalla ripetizione di moduli-classe, ciascuno dotato di un camino vento. Tali moduli rappresentano la principale unità compositiva e lo spazio che primo tra tutti, «come una casa» (Fathy 2008, p. 128), è destinato ad accogliere i bambini. Un simile impianto è riproposto nella scuola di Fares, dove gli spazi amministrativi e collettivi, quali moschea, biblioteca e sala riunioni, occupano il lato est del recinto, mentre le classi si dispongono a nord e a sud rispetto alla corte. Il disegno delle classi si configura come un assemblaggio, secondo un nuovo ordine, degli elementi costitutivi della Qa’a[7]. Uno spazio quadrato coperto con cupola ospita i banchi degli studenti; a questo si affianca un secondo spazio rettangolare e voltato per la docenza, che avrebbe dovuto contenere un salsabil[8]. Tale dispositivo climatico è volto ad incrementare l’efficacia della ventilazione naturale che, nelle prime versioni di progetto, è resa possibile dalla presenza di malkaf. I camini, orientati a nord, in direzione del vento prevalente, sono posti a conclusione dello spazio voltato e sono connessi tra loro mediante gli ambiti d’ingresso alle aule. Ciò consente di avere una complessa articolazione planimetrica, data dall’incastro in sequenza lineare, piuttosto che dalla semplice giustapposizione, delle aule. Sebbene nella versione definitiva, i salsabil e i camini del vento non siano stati realizzati, la presenza di claustra e di una serie di bucature opportunamente direzionate garantisce il raffrescamento all’interno dell’edificio. La parte della scuola dedicata all’insegnamento si imposta dunque sulla ripetizione delle classi lungo due lati della corte rettangolare, che rappresenta l’elemento ordinatore dell’impianto, aperto in direzione del paesaggio urbano. Il tema dell’assemblaggio di unità spaziali sulla base di una griglia ortogonale e intorno a una o più corti è uno dei principi compositivi ricorrenti nelle architetture di Fathy. Nel caso della scuola di Fares tale principio, declinato in relazione al programma funzionale, consente di avere uno spazio aperto comune sul quale affacciano le classi. Si aggiungono infine gli spazi collettivi, ciascuno dotato di una propria individualità e riconoscibile come personaggio autonomo. Tra questi si distingue la piccola moschea, che rappresenta il solo elemento ruotato rispetto all’impianto ortogonale.

La scuola di Fares codifica nell’architettura di Fathy un possibile tipo per l’edificio scolastico che, già presente a New Gourna, ricorrerà diversamente declinato in altri suoi progetti urbani. L’impianto a corte, la ripetizione di moduli-classe caratterizzati nella loro configurazione plano-altimetrica, l’uso di una griglia ortogonale su cui è strutturato l’assemblaggio di unità spaziali, la presenza di spazi collettivi, tra i quali emerge la moschea come figura diversamente orientata, sono tutti elementi riscontrabili in numerosi edifici scolastici progettati da Fathy e, più in generale, in molte delle sue architetture.

Alle scuole, nei villaggi di Fathy, si aggiungono sempre anche altri edifici dedicati all’istruzione, che è però di tipo professionale. Simili per concezione al Centro di Ḥarrāniyyah, si tratta di luoghi in cui egli immagina che gli abitanti possano imparare a fabbricare i mattoni in terra cruda per la costruzione dei villaggi o acquisire le competenze necessarie a produrre oggetti di artigianato locale.

A New Baris (1965) uno tra i primi (e i pochi) edifici realizzati è il centro per l’autocostruzione, considerato un prerequisito per lo sviluppo dell’intero villaggio. L’edificio si pone al limitare sud dell’insediamento, in posizione isolata e adiacente alla porzione di terreno dedicata all’estrazione del fango e all’essicamento dei mattoni in terra cruda. È questa un’architettura essenziale, un recinto definito su due lati da muri e costruito, sugli altri due lati, da una sequenza di spazi voltati, a cui, verso est, si aggiunge un portico che guarda allo spazio astratto del deserto. Un edificio poetico, come le altre costruzioni di Baris, per il suo essere costruito della stessa materia di cui è fatto il suolo e in cui è la luce intensa del deserto a collaborare con l’architettura per definirne gli spazi. Ma in questo caso l’interesse non risiede tanto nell’opera costruita, quanto nell’idea che la sua funzione sottende. L’autocostruzione è infatti un tema ricorrente nell’opera di Fathy. Il coinvolgimento diretto degli abitanti nel processo di costruzione dei villaggi non è solo un espediente per ottenere abitazioni a basso costo, quanto un mezzo per ripristinare l’antica triade architetto, artigiano, proprietario[9]. Tale cooperazione, andata perduta, è, nel pensiero dell’architetto, essenziale per affermare il «ruolo dell’architettura nella crescita culturale e nello sviluppo dell’intera popolazione» (Fathy 2008, p. 78). Se, scrive Fathy, «un contadino non parla mai dell’arte, la produce» (ibidem), necessario è trasmettere ai fellahin le conoscenze per fabbricare mattoni di fango, costruire volte e cupole in terra cruda, prefigurare e costruire le proprie case. Nella visione non priva di utopia di Fathy ciò consentirà di avere abitazioni a somiglianza degli abitanti, villaggi che crescono armoniosamente nel paesaggio e architetture radicate nel luogo, espressione di un «sentimento arabo» (Fathy 1968). Nell’incessante ricerca di Fathy di un linguaggio architettonico autenticamente egiziano, il coinvolgimento di artigiani e abitanti nel processo costruttivo diviene uno degli strumenti attraverso cui tramandare (e tradire) la tradizione.

Emblematico in tal senso è il caso del progetto per la comunità islamica di Dar al-Islam, in New Mexico (1981). Qui, infatti, il processo di edificazione dell’intero villaggio è concepito come una grande scuola a cielo aperto. Fathy disegna il progetto urbano e le singole architetture, quindi, insieme al maestro costruttore Alāʾ al Dīn Muṣṭafa[10], insegna alla comunità locale le tecniche legate all’uso della terra cruda e necessarie a completare la costruzione del villaggio. Sebbene solo pochi edifici siano stati realizzati, l’esperimento appare interessante perché ribadisce, anche al di fuori dei confini egiziani, l’importanza attribuita dall’architetto all’insegnamento di un sapere tradizionale. Importanza che è riconducibile a ciò che Fathy definisce «atteggiamento umanistico» (Fathy 1968), ovvero una visione antropocentrica per la quale le ragioni della sua architettura muovono sempre dall’uomo, al quale l’architettura è rivolta.

Travalicando spesso il suo ruolo, Fathy accompagna ogni progetto urbano a quello di un possibile modello economico e sociale. Ciò spiega l’idea di cooperazione e di autocostruzione e, contestualmente, le ragioni che guidano l’architetto nel progettare, per i suoi villaggi, non solo le forme costruite, ma anche una possibile struttura economica e sociale. Questo approccio è particolarmente evidente a New Gourna, dove la necessità di ricollocare un villaggio induce Fathy a ipotizzare per esso nuove possibili vocazioni. Tra queste, l’artigianato assume un ruolo centrale. Prospiciente la piazza principale del villaggio è infatti posto il khān dei mestieri, che si delinea in parte come una riscrittura tipologica di un caravanserraglio, del quale riprende il nome e parzialmente la funzione. L’edificio si compone di due parti: una corte rettangolare, bordata da un portico, che ospita due tipi di classi-laboratorio e una sequenza di quattro alloggi che definiscono una figura poligonale, ciascuno dei quali rappresenta una riscrittura della casa araba tradizionale. Fathy immagina che nel khān alcuni maestri artigiani possano risiedere temporaneamente, insegnare il mestiere alla popolazione locale e vendere i propri prodotti. Questo sino a quando il sapere non è stato tramandato e il posto lasciato a nuovi artigiani con competenze differenti. In aggiunta al khān Fathy progetta infine una scuola professionale dedicata alla tessitura e alla tintura delle stoffe.

Le scuole artigianali che Fathy immagina per New Gourna sottendono un’idea simile a quella che guiderà, sei anni più tardi, il progetto di Ḥarrāniyyah. In Egitto, che in quel momento avanza verso la liberazione da un passato coloniale, l’istruzione diviene centrale. Imprescindibile è così la presenza di almeno una scuola e di un centro di formazione professionale in ogni villaggio progettato da Fathy, anche nei contesti rurali che sino a quel momento ne erano sprovvisti. Istruire e formare i giovani abitanti, insegnare tecniche artigianali e costruttive tradizionali, incoraggiare la spontaneità nelle arti applicate sono azioni che assumono un significato sociale e culturale. Sociale perché si immagina un possibile modello di sviluppo che, malgrado a tratti lontano dal reale, rivendica per l’architettura un valore civile. Culturale perché, tramandando alle nuove generazioni saperi antichi, si prova a costruire una rinnovata identità.

Sebbene, se osservate oggi, le esperienze descritte appaiano profondamente radicate in un preciso contesto storico-geografico, le idee sottese serbano ancora un valore di attualità. Gli spazi dell’apprendimento progettati da Fathy hanno infatti la capacità di intercettare molteplici questioni, coagulando contenuto, forma e luogo. Il tipo a corte è variamente declinato e costantemente riscritto, sia in relazione al contesto nel quale si colloca, che in relazione alla sua funzione didattica. La classe e il laboratorio sono le unità compositive minime dimensionate in base all’utenza – il bambino o il giovane artigiano – che, quando ripetute e assemblate, configurano insieme agli spazi collettivi una parte di città. Ed è nel ruolo pubblico e urbano di questi edifici che risiede forse il contributo più significativo di tali esperienze al dibattito architettonico contemporaneo. Le scuole di Fathy propongono infatti un modello socio-culturale e contestualmente definiscono le parti di città per le quali sono progettate. Deformandosi, protendendosi nel tessuto attraverso portici, aprendo corti, definendo spazi pubblici o disegnando un segno all’orizzonte, tali edifici hanno la capacità di comporre brani urbani, sino a trasformare, come nel caso di Dar al-Islam, l’intera costruzione della città in una scuola. Continuo è lo scambio tra il paesaggio interno delle scuole e il paesaggio urbano che queste contribuiscono a costruire, sia nei suoi aspetti materiali, che nelle sue componenti sociali e culturali. La risposta formale a un programma funzionale, che è tanto generico quanto specifico, si sottrae così da una logica di tipo autoreferenziale per «aspirare a essere architettura. Architettura educatrice» (Pezzetti 2012).

Note

[1] In merito all’incontro con Wissa Wassef all’Accademia di Belle Arti del Cairo Fathy racconta: «When I became director of the Architecture department, I did not allow the students to work on designing any projects except those that were on Egypt. And I stopped any foreign magazines or journals they used as sources to copy from. The French professors left and only Egyptian teachers remained, but they were all ‘Franco-Arabe’, except for Ramses Wissa Wassef. Only he supported me in the discussions on the importance of culture, identity, philosophy, architecture and education. No one else was interested, and the rest of the professors would walk away from our discussions. They were not aware of the problem, in architecture or in education then. As far as they were concerned there was no problem». In Damluji S.S.D. e Bertini V. (2018) – Hassan Fathy. Earth & Utopia. Laurence King Publishing, London.

[2] Habib Gorgui (1892-1965), pedagogo e ispettore capo della sezione Arte del Ministero dell’Educazione, fonda nel 1938 la Folk Art School. Convinto sostenitore delle teorie junghiane, egli sperimenta nella sua scuola un metodo teso a incentivare la libera espressione degli allievi ai quali sono affidati materiali, argilla o stoffe, da lavorare senza l’imposizione di alcuna tecnica, lasciando che ogni bambino sviluppi spontaneamente la propria creatività. Quello condotto da Gourgi non è un esperimento isolato, ma condiviso da altri educatori del periodo, tra i quali Husayn Yusuf Amin (1904-1984). Entrambi rifiutano le regole canoniche dell’insegnamento artistico per sviluppare un ragionamento sul rapporto tra questione nazionale e libertà creativa, trovando in quest’ultima uno strumento per dare vita a un’arte autenticamente egiziana. Si veda Karnouk L. (2005) – Modern Egyptian Art 1910-2003. The American University Cairo Press, Cairo-New York.

[3] La costruzione del Ramses Wissa Wassef Art Center si è conclusa nel 1974, quando il complesso ha pressappoco raggiunto la sua configurazione attuale. Alcuni altri edifici si sono aggiunti nel tempo, tra i quali un museo dedicato ai prodotti tessili e disegnato da Badye Habib Gorgui. Nel 1983 il progetto è stato insignito dell’Aga Khan Award for Architecture. Il Centro è tutt’ora in funzione.

[4] Sul progetto si veda Cantacuzino S. (1985) – “Ramses Wissa Wasser Arts Centre”. In: S. Cantacuzino (a cura di), Architecture in Continuity. Aperture, New York.

[5] I disegni sono conservati presso la Rare Books and Special Collection Library, Hassan Fathy Architectural Archives, American University of Cairo. Rif. 49.04.

[6] La Qa’a è la sala di ricevimento per gli ospiti dei palazzi medievali del Cairo. Essa si compone di due parti e ha una precisa articolazione planimetrica, alla quale corrisponde una sezione codificata. È uno dei principali elementi della tradizione che Fathy traspone, riscrivendolo, nel suo linguaggio. Sull’uso del layout della Qa’a nelle architetture di Fathy si veda Fathy H. (1972) – “The Qa’a of the Cairene Arab House, Its Development and Some New Usages For its Design Concepts”. In: Colloque international sur l’histoire du Caire, 27 mars- 5 avril 1969. Ministry of Culture of the Arab Republic of Egypt, Cairo.

[7] «Il salsabil è una fontana verticale […] costituita da una lastra di marmo intarsiata e lavorata in bassorilievo, con motivi ornamentali che evocano l’acqua e il vento. La lastra è collocata in posizione lievemente obliqua, in modo da facilitare lo scorrere dell’acqua sulla superficie». In Picone A. (2009), Op. cit., 129.

[8] Sul concetto si veda Fathy H. (2008), Op. cit. e Fathy H. (1974), Op. cit.

[9] Alāʾ al Dīn Muṣṭafa lavora per la prima volta con Fathy nel 1945 alla costruzione del villaggio di New Gourna. A partire da quel momento egli continuerà a collaborare con l’architetto egiziano. Un’intervista a Alāʾ al Dīn Muṣṭafa è contenuta in Damluji S. S. D e Bertini V. (2018), Op. cit.

[10] Cfr. Fathy H. (1977) – “Baris. A Case Study in Rural Housing (New Valley – Kharga Oasis)”. Rural Habitat, 11.


Bibliografia

CANTACUZINO S. (1985) – “Ramses Wissa Wasser Arts Centre”. In: S. Cantacuzino (a cura di), Architecture in Continuity. Aperture, New York.
DAMLUJI S.S.D. e Bertini V. (2018) – Hassan Fathy. Earth & Utopia. Laurence King Publishing, London.
FATHY H. (1967) – “Che cos’è una città?”, lezione tenuta all’Università di Al-Azhar. Casabella, 653, 56-61.
FATHY H. (1972) – “The Qa’a of the Cairene Arab House, Its Development and Some New Usages For its Design Concepts”. In: Colloque international sur l’histoire du Caire, 27 mars- 5 avril 1969. Ministry of Culture of the Arab Republic of Egypt, Cairo.
FATHY H. (1974) – “Planning and Building in the Arab Tradition: The Village Experiment at Gourna”. In: M. Berger (a cura di), The New Metropolis in the Arab World. Octagon Books, New York.
FATHY H. (1977) – “Baris. A Case Study in Rural Housing (New Valley – Kharga Oasis)”. Rural Habitat, 11.
FATHY H. (2008) – Costruire con la gente. Storia di un villaggio d’Egitto: Gourna. Jaca Book, Milano.
KARNOUK L. (2005) – Modern Egyptian Art 1910-2003. The American University Cairo Press, Cairo-New York.
PEZZETTI L. A. (2012) – Architetture per la scuola. Impianto, forma, idea. Clean, Napoli.
PICONE A. (2009) – La casa araba d’Egitto. Costruire con il clima dal vernacolo ai maestri contemporanei. Jaca Book, Milano.
WISSA WASSEF R. (1972) – Woven by hand. Hamlyn Publishing Company, London. Traduzione dell’autore.